14430 Bermuda Dunes Way, Colorado Springs, CO, 80921

Image Count: 48

$750,000

  • Highlights
  • Single Family
  • 6 bd | 4 ba | 3,814 sqft
  • 14430 Bermuda Dunes Way, Colorado Springs, CO, 80921 listed by Marnie Terry
  • Active
  • MLS#: 5559054
  • Tour #1 | Tour #2
  • View on Map
Space maker

Property Description

Wanting something that feels like home? Cozy? Inviting? Spacious? Look no further. 6 generously sized bedrooms and 4 bathrooms provide ample room for family living and entertaining. Located on .37 of an acre, this corner lot has many wonderful areas for play! South facing deck to enjoy coffee or sunset cocktails. On the main level, take advantage of one bedroom and two living areas that invoke comfort. This home boasts sleek new stone countertops, offering a stylish and functional kitchen and bathrooms. Upstairs enjoy a great jack and jill bathroom with bluetooth speakers within the lighting! The four bedrooms upstairs each have built in shelving too! Enjoy the elegance of newly refinished floors and tastefully painted walls throughout. Three beautiful gas fireplaces enhance the home's cozy, welcoming atmosphere. The downstairs walkout basement is where the fun begins! Large recreation area with LVP and an office and bedroom with ample storage. Step outside to find mature landscaping and an inviting outdoor space perfect for relaxation or entertaining. Close to the Air Force Academy, shopping, trails and I-25. This truly is one of those homes when you walk in, your heart is happy.

Property Listed By

Picture of REALTOR Listing Property
  • Marnie Terry
  • 4717-388-303  Call the Agent 
Picture of Office Listing Property
  • The Platinum Group
  • 4444-635-917  Call the Agent 

Property Details

    General Features

  • Property: Single Family, 2 Story
  • Year Built: 1988
  • List Price: $750,000
  • County: El Paso
  • School District: Academy-20

    Rooms

  • Bedrooms: 6
  • Baths: 2 full bath; 1 1/2 bath; 1 3/4 bath;
  • Laundry: Main

    Structure

  • Foundation: Full Basement, Garden Level, Walk Out
  • Heating: Baseboard
  • Cooling: Ceiling Fan
  • Garage/Parking #: 2 vehicle(s), Attached
  • Total SqFt: 3,814
  • Finished SqFt: 3,658
  • Basement SqFt: 1,038
  • Basement % Fin: 85
  • Construction Status: Existing Home
  • Siding: Wood
  • Structure: Framed on Lot

    Features

  • Appliances: Dishwasher, Disposal, Microwave Oven, Oven, Refrigerator
  • Floors: Carpet, Tile, Wood
  • Entry: Natural Wood
  • Fireplace: Basement, Gas, Main Level, Three
  • Additional Items: Curtains main level and hardware/kitchen island/portable air conditioning unit/
  • Interior Features: 5-Pc Bath, Great Room
  • Laundry: Main

    Taxes, Utilities, Lot

  • Tax: $3,604
  • Lot Size: 0.36 Acres, 15,682 SqFt
  • Lot Description: Corner, Flag Lot, Mountain View
  • Existing Utilities: Cable Connected, Electricity Connected, Natural Gas Available
  • Existing Water: Assoc/Distr

    Community

  • Covenants: Yes
  • HOA Dues: $67
  • HOA Frequency: Annual
  • HOA Fee Includes: Covenant Enforcement

    Additional Information


      Disclaimer
      The real estate listing information and related content displayed on this site is provided exclusively for consumers’ personal, non-commercial use and may not be used for any purpose other than to identify prospective properties consumers may be interested in purchasing.
      PPAR.com Website

      14430 Bermuda Dunes Way, Colorado Springs, CO, 80921

      Image 1 of 48: Front of Structure

      Front of Structure

      Image 2 of 48: Front of Structure

      Front of Structure

      Image 3 of 48: Open Space nearby!

      Open Space nearby!

      Image 4 of 48: Entry

      Entry

      Image 5 of 48: Other

      Other

      Image 6 of 48: Formal living room

      Formal living room

      Image 7 of 48: Living Room

      Living Room

      Image 8 of 48: Living Room

      Living Room

      Image 9 of 48: Kitchen

      Kitchen

      Image 10 of 48: Kitchen

      Kitchen

      Image 11 of 48: Kitchen

      Kitchen

      Image 12 of 48: Dining Area

      Dining Area

      Image 13 of 48: Family Room

      Family Room

      Image 14 of 48: Living Room

      Living Room

      Image 15 of 48: Main level bedroom

      Main level bedroom

      Image 16 of 48: Main level 3/4 bathroom

      Main level 3/4 bathroom

      Image 17 of 48: Laundry

      Laundry

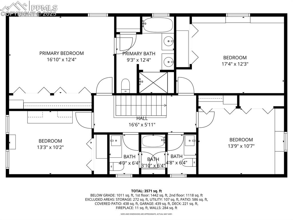
      Image 18 of 48: Primary bedroom

      Primary bedroom

      Image 19 of 48: Bedroom

      Bedroom

      Image 20 of 48: Bedroom

      Bedroom

      Image 21 of 48: Bathroom

      Bathroom

      Image 22 of 48: Bathroom

      Bathroom

      Image 23 of 48: Upper bedroom

      Upper bedroom

      Image 24 of 48: Bedroom

      Bedroom

      Image 25 of 48: Upper bedroom

      Upper bedroom

      Image 26 of 48: Jack and Jill bathroom

      Jack and Jill bathroom

      Image 27 of 48: Bathroom

      Bathroom

      Image 28 of 48: Bathroom

      Bathroom

      Image 29 of 48: Bedroom

      Bedroom

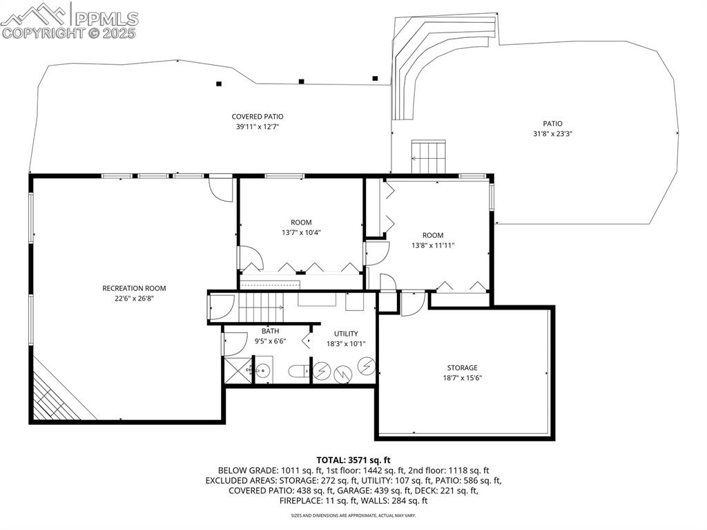
      Image 30 of 48: Basement

      Basement

      Image 31 of 48: Basement

      Basement

      Image 32 of 48: Basement

      Basement

      Image 33 of 48: Basement

      Basement

      Image 34 of 48: Basement

      Basement

      Image 35 of 48: Basement bedroom

      Basement bedroom

      Image 36 of 48: Office

      Office

      Image 37 of 48: Deck

      Deck

      Image 38 of 48: Patio

      Patio

      Image 39 of 48: Back of Structure

      Back of Structure

      Image 40 of 48: Back of Structure

      Back of Structure

      Image 41 of 48: Patio

      Patio

      Image 42 of 48: Aerial View

      Aerial View

      Image 43 of 48: Aerial View

      Aerial View

      Image 44 of 48: Aerial View

      Aerial View

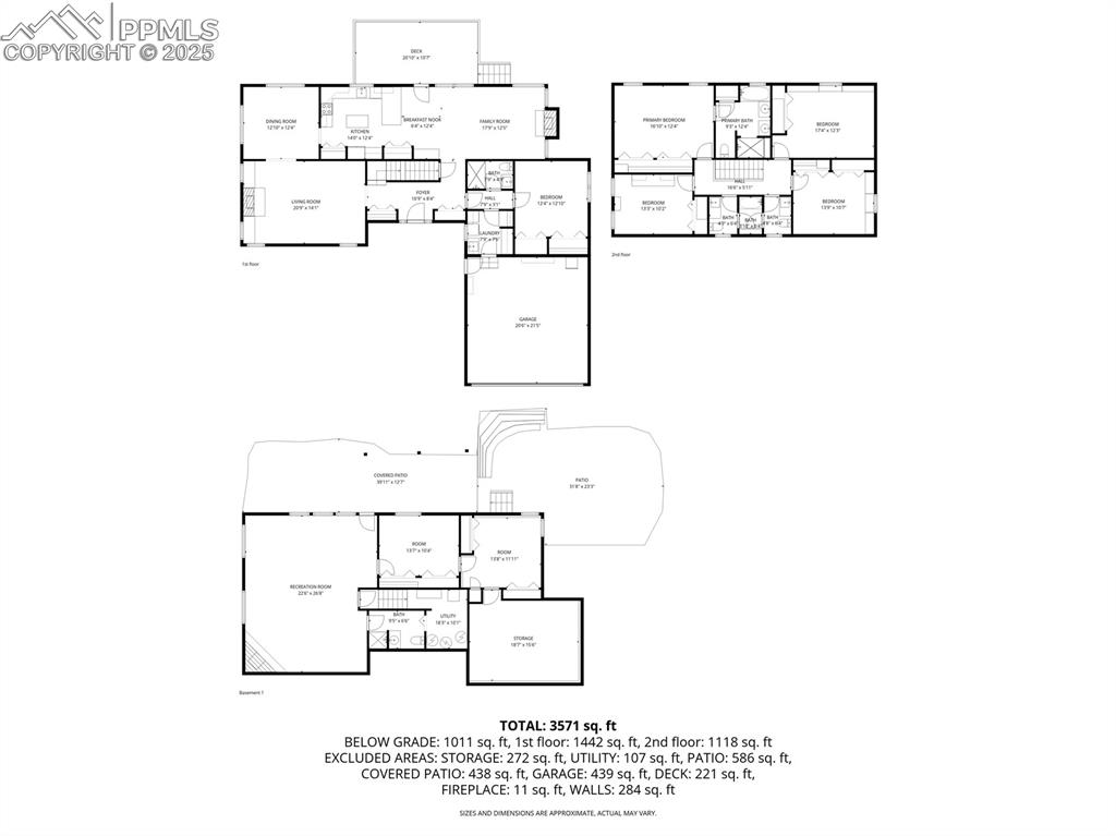
      Image 45 of 48: Full floor plan

      Full floor plan

      Image 46 of 48: Main level area

      Main level area

      Image 47 of 48: Upstairs area

      Upstairs area

      Image 48 of 48: Upstairs area

      Upstairs area

      Disclaimer: The real estate listing information and related content displayed on this site is provided exclusively for consumers’ personal, non-commercial use and may not be used for any purpose other than to identify prospective properties consumers may be interested in purchasing.