935 Saturn Drive 227, Colorado Springs, CO, 80905

Southwest entrance with key-only building access. Assigned parking spot #33 is located to the left along the fence.

Large indoor community swimming pool

Landscaped exterior common areas

Unit 227 has modern updates and plenty of natural light

Open concept living

Breakfast bar perfect for a quick meal or working from home

All kitchen appliances and updated countertops and cupboards

Update kitchen with all appliances

Dining area with mountain views

Living Room

Updated bathroom on main level across from staircase

Main level half bathroom with upgraded countertops

Large closet under stairs for storage. Entry door on main level, as well as upper level entry.

Incredible views out the 2nd bedroom on the upper level

Easy to clean LVP flooring - no carpet in this unit!

Built-in shelving in upper level bathroom

Built-in shelving in upper level bathroom

Primary bedroom on upper level with mountain views

Primary bedroom with glass door closets

West-facing unit provides mountain views out of nearly every room

Dining Area

Living Room

Window coverings and most furniture included

Year-round community swimming pool

Sauna on lower level of building

Main building entrance on Northwest side of the building. Guest parking in this area as well.

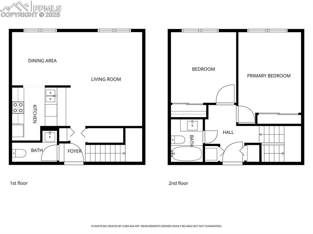
Main floor includes kitchen, half bath, dining area, living room, closets, and exterior entrance.

Upper level includes 2 bedrooms, full bathroom, and additional exterior entrance by closets.

Combined floor plans with a total of 1012 square feet.
Disclaimer: The real estate listing information and related content displayed on this site is provided exclusively for consumers’ personal, non-commercial use and may not be used for any purpose other than to identify prospective properties consumers may be interested in purchasing.