1003 N Institute Street, Colorado Springs, CO, 80903

Image Count: 40

$655,000

  • Highlights
  • Single Family
  • 4 bd | 4 ba | 2,351 sqft
  • 1003 N Institute Street, Colorado Springs, CO, 80903 listed by Jennifer Lohrig
  • Under Contract - Showing
  • MLS#: 8452406
  • Tour #1
  • View on Map
Space maker

Property Description

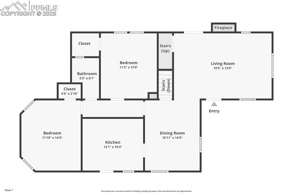
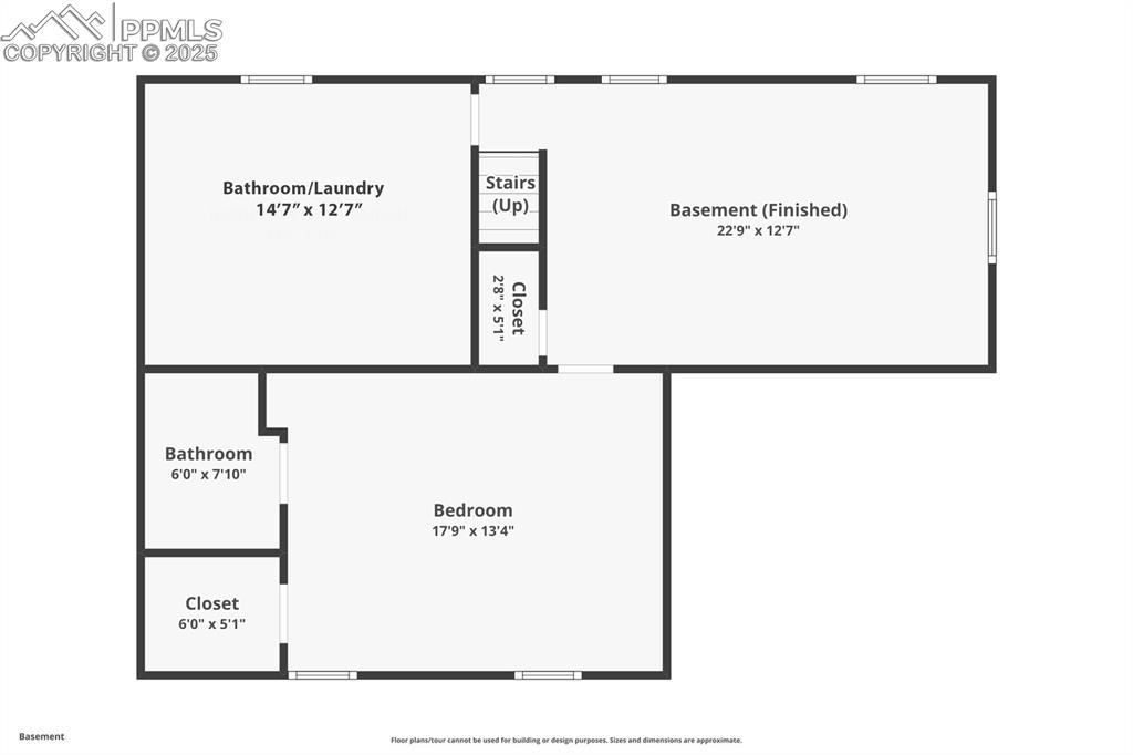
Charming 1938 Tudor home situated on a corner lot with Pikes Peak Views, covered front porch, and a fully fenced in yard. Located in the desirable Shooks Run neighborhood, this beauty has four bedrooms, four bathrooms, and a two car garage. Upon entering the home, you will be bathed in warm and abundant light from the large bay window and stunning Pikes Peak views. Original wood floors, quaint architectural period details, coved ceilings, and gas fireplace complete the picture book charm of the living room. French doors from the living room lead to the private backyard with mature landscaping and artificial grass for seasonal low maintenance. The living room opens up to the large dining room and leads to the kitchen with new stainless steel dishwasher, tile flooring, recessed lighting, refrigerator, gas range, and overhead microwave. There is access from the kitchen to the driveway and two car garage for extra added convenience. There are two main level large bedrooms and a 3/4 bathroom, one of the bedrooms could be used as a primary. Upper level bedroom suite has an adjoining full bathroom with soaking tub and walk-in closet. The lower level has original cedar wood ceilings/wall surround with an oversized family room and additional bedroom/bath. The 4th bedroom has an en-suite with a walk-in closet, full adjoining bathroom, and an egress window. The full bathroom has been updated with tile flooring, subway tile surround, fixtures, and a pedestal sink. Beautiful hard flooring throughout—no carpet to worry about. Some updates include, new Anderson windows, new roof (20), A/C (24), furnace (12), lighting, gutters (20), radon mitigation, and professional landscaping. There is additional storage in the attic with a door for easy access. This home offers exceptional walkability, with easy access to nearby parks, scenic trails, restaurants, coffee shops, hospital, Olympic Training Center, entertainment, and the vibrant downtown area—all just a short stroll away!

Property Listed By

Picture of REALTOR Listing Property
  • Jennifer Lohrig
  • 7576-092-917  Call the Agent 
Picture of Office Listing Property
  • Walston Group Real Estate Inc
  • 0141-774-917  Call the Agent 
Jennifer Lohrig has lived in Colorado for over forty years and comes from a family background in real estate. With her knowledge of the local real estate market and as an investment property owner, real estate brokerage is second nature for Jennifer. Over 10 years of professional experience in sales has helped Jennifer to build a loyal clientele based on referrals and repeat clients who rely on her outstanding customer service skills.

Property Details

    General Features

  • Property: Single Family, 1.5 Story
  • Year Built: 1938
  • List Price: $655,000
  • County: El Paso
  • School District: Colorado Springs 11

    Rooms

  • Master: Upper Level, 14 x 12
  • Bedrooms: 4
  • Baths: 2 full bath; 1 1/2 bath; 1 3/4 bath;
  • Master Bathroom Amenities: Tub/Shower
  • Laundry: Basement

    Structure

  • Foundation: Partial Basement
  • Heating: Forced Air
  • Cooling: Ceiling Fan, Central Air
  • Garage/Parking #: 2 vehicle(s), Detached
  • Garage Amenities: Oversized
  • Patio Description: Concrete, Covered
  • Total SqFt: 2,351
  • Finished SqFt: 2,183
  • Basement SqFt: 838
  • Basement % Fin: 80
  • Construction Status: Existing Home
  • Siding: Stucco, Wood
  • Structure: Frame

    Features

  • Appliances: Dishwasher, Disposal, Dryer, Gas in Kitchen, Microwave Oven, Range, Refrigerator, Washer
  • Floors: Tile, Wood
  • Entry: Covered, Natural Wood
  • Fireplace: Gas, Main Level
  • Additional Items: All kitchen appliances
  • Laundry: Basement

    Taxes, Utilities, Lot

  • Tax: $2,020
  • Lot Size: 0.16 Acres, 6,983 SqFt
  • Street Description: City/Town Road
  • Landscaped: All
  • Fence: All
  • Driveway: Concrete
  • Lot Location: Hiking Trail, Near Fire Station, Near Hospital, Near Park, Near Public Transit, Near Schools, Near Shopping Center
  • Lot Description: Level, Mountain View, View of Pikes Peak
  • Existing Utilities: Cable Available, Electricity Connected, Natural Gas Connected
  • Existing Water: Municipal

    Community

    Additional Information


      Disclaimer
      The real estate listing information and related content displayed on this site is provided exclusively for consumers’ personal, non-commercial use and may not be used for any purpose other than to identify prospective properties consumers may be interested in purchasing.
      PPAR.com Website

      1003 N Institute Street, Colorado Springs, CO, 80903

      Image 1 of 40: Front of Structure

      Front of Structure

      Image 2 of 40: Living Room

      Living Room

      Image 3 of 40: Living Room

      Living Room

      Image 4 of 40: Living Room

      Living Room

      Image 5 of 40: Living Room

      Living Room

      Image 6 of 40: Living Room

      Living Room

      Image 7 of 40: Dining Area

      Dining Area

      Image 8 of 40: Dining Area

      Dining Area

      Image 9 of 40: Dining Area

      Dining Area

      Image 10 of 40: Dining Area

      Dining Area

      Image 11 of 40: Dining Area

      Dining Area

      Image 12 of 40: Dining Area

      Dining Area

      Image 13 of 40: Kitchen

      Kitchen

      Image 14 of 40: Kitchen

      Kitchen

      Image 15 of 40: Kitchen

      Kitchen

      Image 16 of 40: Bedroom

      Bedroom

      Image 17 of 40: Bedroom

      Bedroom

      Image 18 of 40: Bathroom

      Bathroom

      Image 19 of 40: Office

      Office

      Image 20 of 40: Bedroom

      Bedroom

      Image 21 of 40: Bedroom

      Bedroom

      Image 22 of 40: Bathroom

      Bathroom

      Image 23 of 40: Living Room

      Living Room

      Image 24 of 40: Living Room

      Living Room

      Image 25 of 40: Living Room

      Living Room

      Image 26 of 40: Sitting Room

      Sitting Room

      Image 27 of 40: Bedroom

      Bedroom

      Image 28 of 40: Bedroom

      Bedroom

      Image 29 of 40: Bathroom

      Bathroom

      Image 30 of 40: Bathroom

      Bathroom

      Image 31 of 40: Yard

      Yard

      Image 32 of 40: Yard

      Yard

      Image 33 of 40: Front of Structure

      Front of Structure

      Image 34 of 40: Front of Structure

      Front of Structure

      Image 35 of 40: Front of Structure

      Front of Structure

      Image 36 of 40: Front of Structure

      Front of Structure

      Image 37 of 40: Aerial View

      Aerial View

      Image 38 of 40: Main level

      Main level

      Image 39 of 40: Upper level

      Upper level

      Image 40 of 40: Lower level

      Lower level

      Disclaimer: The real estate listing information and related content displayed on this site is provided exclusively for consumers’ personal, non-commercial use and may not be used for any purpose other than to identify prospective properties consumers may be interested in purchasing.