87 Raven Hills Court, Colorado Springs, CO, 80919

Image Count: 45

$530,000

  • Highlights
  • Single Family
  • 3 bd | 3 ba | 2,377 sqft
  • 87 Raven Hills Court, Colorado Springs, CO, 80919 listed by Lance Thibault ABR GREEN GRI MRP
  • Active
  • MLS#: 1382911
  • Tour #1 | Tour #3
  • View on Map
Space maker

Property Description

Welcome to this beautifully maintained Rockrimmon home, brimming with natural light and set on a .21-acre lot. Key updates include a new furnace in 2021, a 50-gallon water heater in 2019, a new roof in 2014, and an updated electrical panel in 2012—providing peace of mind for years to come - just minutes from schools, parks, and shopping. This house combines comfort, character, and thoughtful improvements. But the real value here is the location. In real estate, you can change a house, but you can't change its location. This home sits less than 10 minutes from several parks, including Discovery, Cottonwood Creek, Woodmen Valley, Erindale, Pulpit Rock, and Ute Valley Parks. It sits in the highly desired NW side of town, tucked into the foothills of the Rocky Mountain front range. Nestled among mature trees in a welcoming neighborhood, this is where quality, value, peace, and quiet come standard. Location is not just a feature; it's a lifestyle, and that is something you cannot substitute. Rich hardwood floors, arched doorways, and oversized windows create warmth throughout multiple living and family spaces. The freshly painted and updated kitchen offers tray ceilings, ample cabinetry, slab granite counters, custom tile backsplash, a pantry, and updated appliances, including a new refrigerator and range in 2024, and a new microwave in 2023. The kitchen opens to a large composite deck—shaded by pines, a fenced yard, two paverstone patios, and a tranquil rock waterfall with pond. The primary suite features a gas fireplace, sitting area, double closets, and an attached bath. A second bedroom enjoys a nearby full bath, while the spacious lower level boasts another fireplace-anchored family room, a private bedroom and a bath for guests. Outdoors, enjoy true Colorado living with multiple entertaining areas, a fire pit, and BBQ space. Additional highlights include central A/C, stucco exterior, vinyl windows, gated trailer parking, and an attached 2-car garage.

Property Listed By

Picture of REALTOR Listing Property
  • Lance Thibault ABR GREEN GRI MRP
  • 7601-133-917  Call the Agent 
Picture of Office Listing Property
  • REMAX PROPERTIES
  • 0068-845-917  Call the Agent 
The Air Force brought me to Colorado Springs in 1996 and my wife and I have called this beautiful city our home for over 20 years. We love the area and spend our time hiking and playing in many of the outdoor activities Colorado has to offer. As sports fans, we love going to school events, Vibes games, and Air Force Academy football and hockey games. We cook at home nearly every night and volunteer often in the community as coaches, and on advisory committees. When it's time for a break, ...

Property Details

    General Features

  • Property: Single Family, Bi-level
  • Year Built: 1971
  • List Price: $530,000
  • County: El Paso
  • School District: Academy-20

    Rooms

  • Bedrooms: 3
  • Baths: 1 full bath; 2 3/4 bath;
  • Laundry: Lower

    Structure

  • Foundation: Garden Level
  • Heating: Forced Air
  • Cooling: Central Air
  • Garage/Parking #: 2 vehicle(s), Attached
  • Garage Amenities: Oversized
  • Total SqFt: 2,377
  • Finished SqFt: 2,335
  • Construction Status: Existing Home
  • Siding: Stucco, Wood
  • Structure: Framed on Lot, Frame

    Features

  • Appliances: Dishwasher, Disposal, Microwave Oven, Range, Refrigerator
  • Floors: Carpet, Wood
  • Fireplace: Gas, Lower Level, Two, Upper Level, Wood Burning
  • Laundry: Lower

    Taxes, Utilities, Lot

  • Tax: $1,969
  • Lot Size: 0.21 Acres, 9,200 SqFt
  • Fence: Rear
  • Driveway: Concrete
  • Lot Description: Level, Mountain View
  • Existing Utilities: Electricity Connected, Natural Gas Connected
  • Existing Water: Municipal

    Community

  • Covenants: Yes
  • HOA Dues: $130
  • HOA Frequency: Annual
  • HOA Fee Includes: Covenant Enforcement, Management

    Additional Information


      Disclaimer
      The real estate listing information and related content displayed on this site is provided exclusively for consumers’ personal, non-commercial use and may not be used for any purpose other than to identify prospective properties consumers may be interested in purchasing.
      PPAR.com Website

      87 Raven Hills Court, Colorado Springs, CO, 80919

      Image 1 of 45: Front of Structure

      Front of Structure

      Image 2 of 45: Welcome to the top of Raven Hills

      Welcome to the top of Raven Hills

      Image 3 of 45: Aerial View

      Aerial View

      Image 4 of 45: Aerial View

      Aerial View

      Image 5 of 45: Front of Structure

      Front of Structure

      Image 6 of 45: Entry

      Entry

      Image 7 of 45: Entry

      Entry

      Image 8 of 45: Living Room

      Living Room

      Image 9 of 45: Living Room

      Living Room

      Image 10 of 45: Dining Area

      Dining Area

      Image 11 of 45: Dining Area

      Dining Area

      Image 12 of 45: Dining Area

      Dining Area

      Image 13 of 45: Kitchen

      Kitchen

      Image 14 of 45: Kitchen

      Kitchen

      Image 15 of 45: Kitchen

      Kitchen

      Image 16 of 45: Bedroom

      Bedroom

      Image 17 of 45: Bedroom

      Bedroom

      Image 18 of 45: Bedroom

      Bedroom

      Image 19 of 45: Exercise Room

      Exercise Room

      Image 20 of 45: Bathroom

      Bathroom

      Image 21 of 45: Bedroom

      Bedroom

      Image 22 of 45: Bedroom

      Bedroom

      Image 23 of 45: Bathroom

      Bathroom

      Image 24 of 45: Bathroom

      Bathroom

      Image 25 of 45: Living Room

      Living Room

      Image 26 of 45: Living Room

      Living Room

      Image 27 of 45: Bedroom

      Bedroom

      Image 28 of 45: Bathroom

      Bathroom

      Image 29 of 45: Laundry

      Laundry

      Image 30 of 45: Deck

      Deck

      Image 31 of 45: Deck

      Deck

      Image 32 of 45: Patio

      Patio

      Image 33 of 45: Space for camper parking on side yard with large gated access

      Space for camper parking on side yard with large gated access

      Image 34 of 45: Back of Structure

      Back of Structure

      Image 35 of 45: Patio

      Patio

      Image 36 of 45: Yard

      Yard

      Image 37 of 45: Back of Structure

      Back of Structure

      Image 38 of 45: Yard

      Yard

      Image 39 of 45: Aerial View

      Aerial View

      Image 40 of 45: Aerial View

      Aerial View

      Image 41 of 45: Aerial View

      Aerial View

      Image 42 of 45: Aerial View

      Aerial View

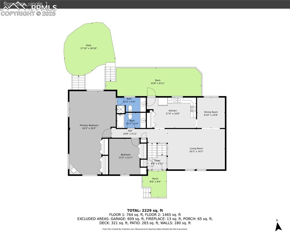
      Image 43 of 45: Upper Level

      Upper Level

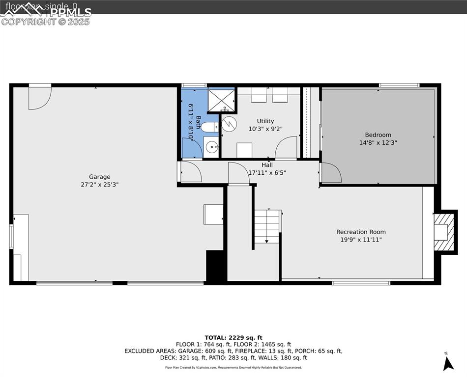
      Image 44 of 45: Lower Level

      Lower Level

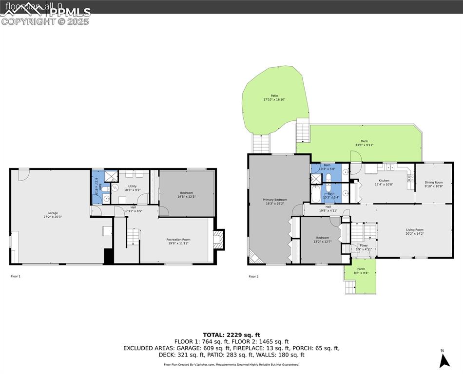
      Image 45 of 45: Floor Plan

      Floor Plan

      Disclaimer: The real estate listing information and related content displayed on this site is provided exclusively for consumers’ personal, non-commercial use and may not be used for any purpose other than to identify prospective properties consumers may be interested in purchasing.