318 Cielo Vista Street, Colorado Springs, CO, 80911

Widefield rancher

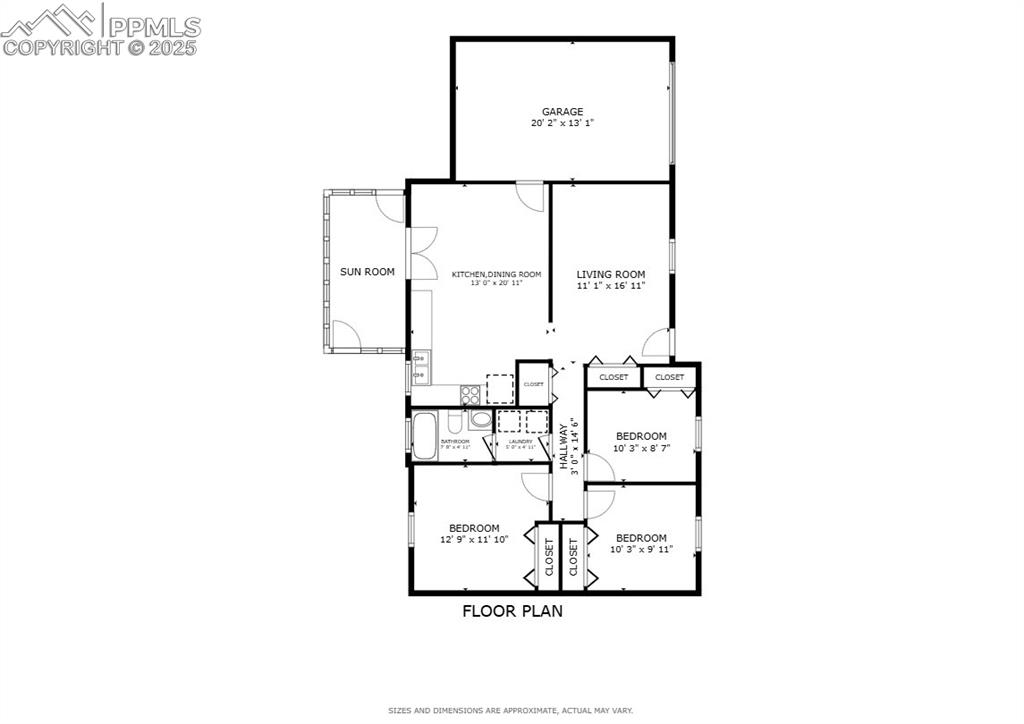
Living room

Kitchen

Walk-out to enclosed patio

Dining area

Primary bedroom

Bedroom 2

Bedroom 3

Full bath

Laundry space

Enclosed patio

Storage shed and garage access

Mature trees for backyard shade & privacy

Large fully fenced yard

Floorplan
Disclaimer: The real estate listing information and related content displayed on this site is provided exclusively for consumers’ personal, non-commercial use and may not be used for any purpose other than to identify prospective properties consumers may be interested in purchasing.