2563 Integrity Court, Colorado Springs, CO, 80918

Front of Structure

Low maintenance stucco & stone

Mature landscaping

Front of Structure

Stone gas fireplace & Walk out to the back yard

Living room onnects with dining area, hardwood flooring

Living Room

A Wow chandelier

Italian tile entry with rod iron railings to lower level

Italian tile kitchen flooring, Silestone counter tops

Gourmet kitchen with vegetable sink, appliance garage

Lighted custom cabinets

Kitchen

Eat in kitchen area at bay window

Other

Newer carpet in primary bedroom

Tray lighting

Adjoining 5 piece primary bath

Primary bath with tiled shower & bench

Primary closet with built in closet drawers

Loads of room for shoes, etc

1/2 bath on main with hardwood flooring

Elevator with phone & back up battery

Lower level large family room

Family Room

Lower level large wet bar

with dishwasher, sink, beverage center, & microwave

Spacious lower level family room

Family Room

Tiled gas fireplace with lighted shelving

Family Room

Family Room

Lower level laundry with Washer, dryer, & freezer included

2nd lower level bedroom

Bedroom

Lower level full bath

Lower level 3rd bedroom with walk in closet

Bedroom

12' X 8' master spa/pool included

Beautiful flagstone patio with gazebo

Lots of perennials & a garden area

Aerial View

Aerial View

Aerial View

Aerial View

Aerial View

Aerial View

Main family room is a vaulted living room/dining area

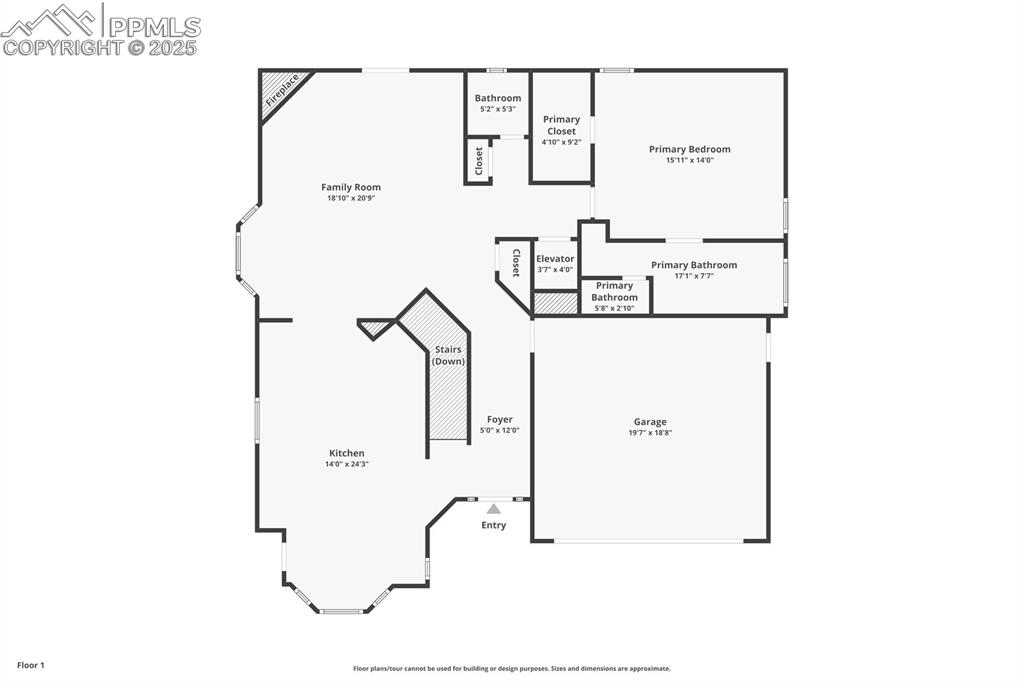
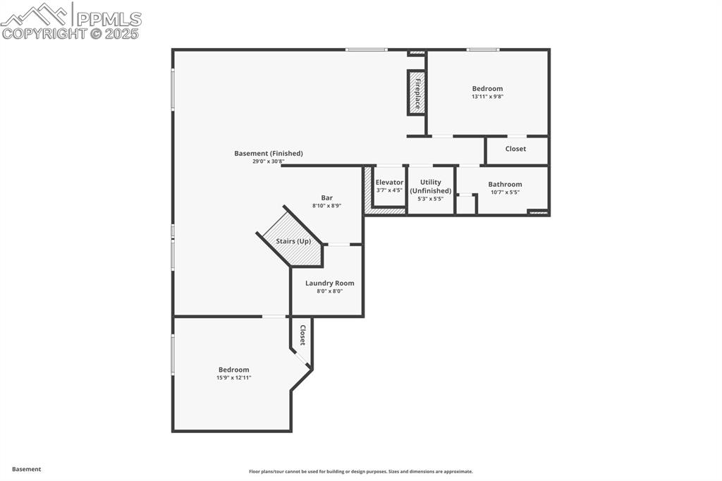
Floor Plan
Disclaimer: The real estate listing information and related content displayed on this site is provided exclusively for consumers’ personal, non-commercial use and may not be used for any purpose other than to identify prospective properties consumers may be interested in purchasing.