16540 Mesquite Road, Peyton, CO, 80831

Front view of home with wrap around porch and attached garage

3 car oversized garage

5 acre lot with meadow and trees

fenced yard

fenced back yard with patio

What a view?

Aerial View

Yard

wrap around porch

patio with firepit

room to roam

Virtually staged -spacious living room featuring fireplace and walkout to back patio

Living Room

one of two stairways to upper level

stone fireplace

kitchen island, farm style sink, wine fridge, breakfast bar, pantry

look at that beautiful stove

Kitchen

unique fridge

Kitchen

Kitchen

Kitchen

Office featuring paned glass French doors

spacious second floor landing

Primary bedroom featuring sitting area with fireplace

5 piece bath with claw foot tub

double vanity sinks

2nd bedroom

3rd bedroom

4th bedroom with huge walk in closet

5th bedroom

full bath - upper level

Game Room

Virtually staged - lots of possibilities

theater room, living room, class room, toy room - you decide

6th bedroom

7th bedroom

full bath - lower level

3/4 bath conveniently located near mud room - main level

1/2 bath main level

Barn

wash stall

3 stall with feeders

storage area

Stable

tack room or storage in barn

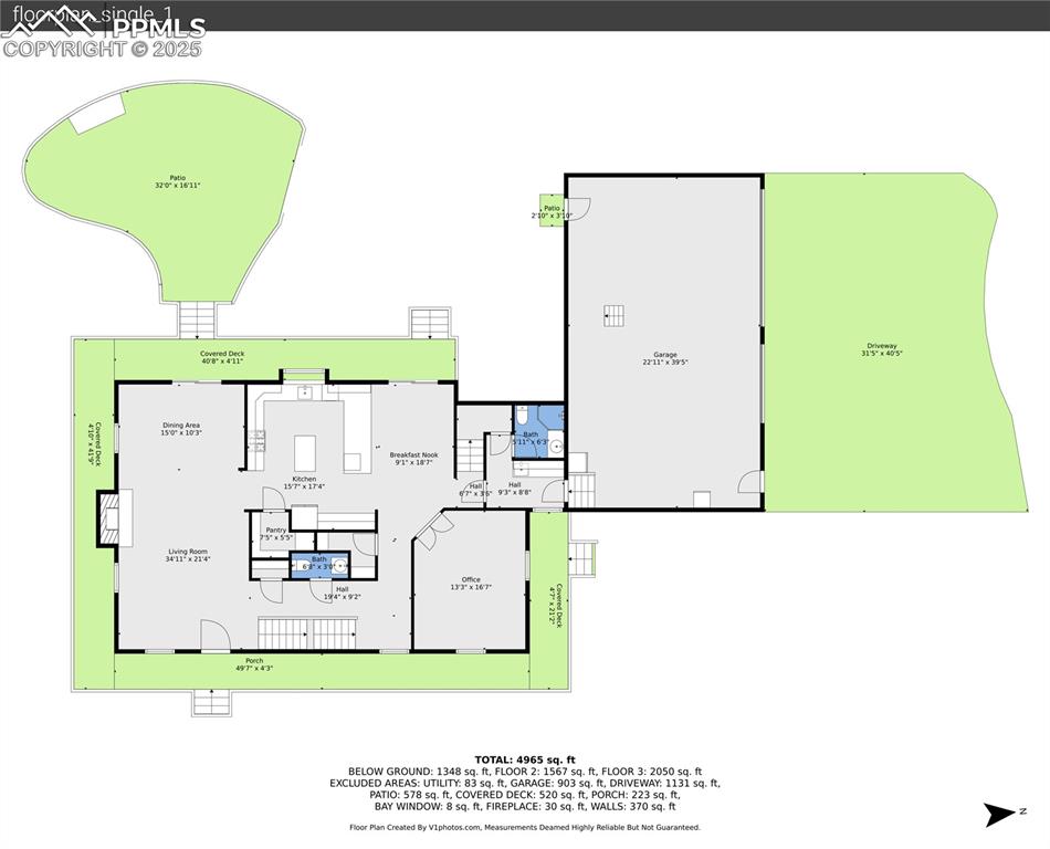
main level

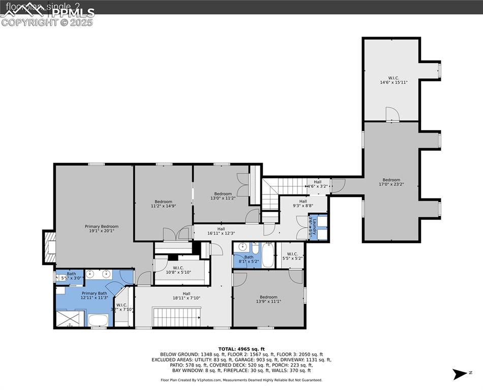
upper level

lower level

Floor Plan
Disclaimer: The real estate listing information and related content displayed on this site is provided exclusively for consumers’ personal, non-commercial use and may not be used for any purpose other than to identify prospective properties consumers may be interested in purchasing.