328 Sutherland Place, Manitou Springs, CO, 80829

View

Front of home

Front patio with custom bench

Aerial View

Terraced backyard into Deer Valley Park

Usable backyard space

View toward Garden of the Gods

Yard

Deck

Aerial View

View with solar

View

Yard

Back of Structure

Upstairs living room

Plenty of wall space for art!

Living Room

Living Room

Kitchen corner with fireplace

Kitchen

Kitchen

Dining Area

Dining Area

Dining Area

Upstairs hall bath

Front bedroom

Primary Bedroom suite

Bedroom

Primary bath

Bathroom

Main Level Laundry room goes to garage

Basement wet bar

Bar

Lower level living room

Spacious Lower level bedroom

Huge flex space - studio, office, craft space, playroom

Upper Deck

Upper deck with views

Other

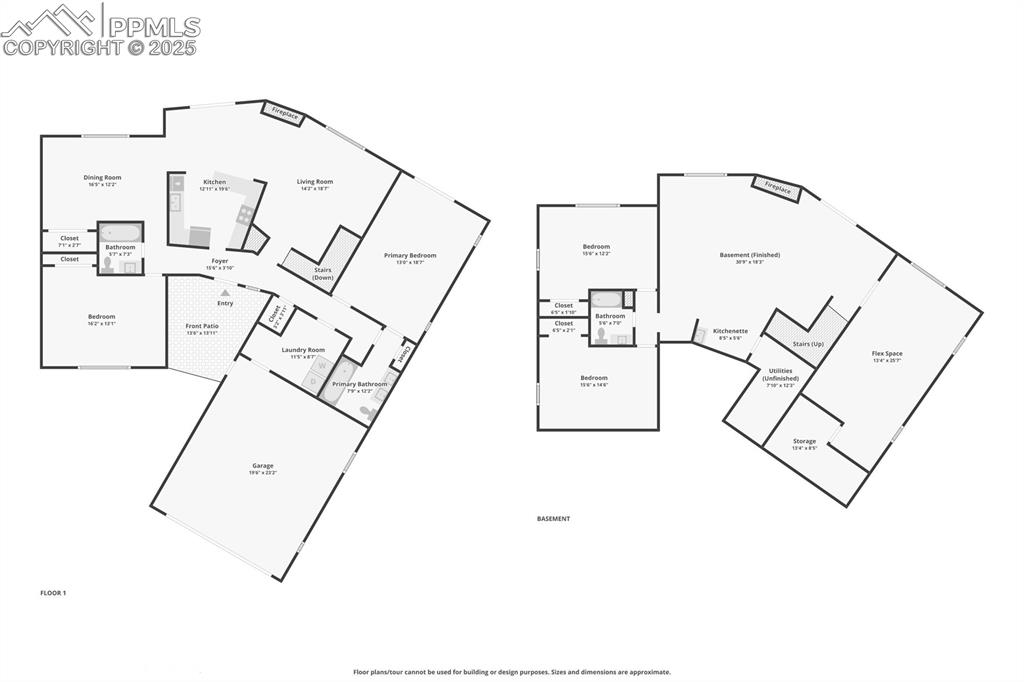
Floor Plan
Disclaimer: The real estate listing information and related content displayed on this site is provided exclusively for consumers’ personal, non-commercial use and may not be used for any purpose other than to identify prospective properties consumers may be interested in purchasing.