4801 Sweetgrass Lane, Colorado Springs, CO, 80922

Image Count: 44

$535,000

  • Highlights
  • Single Family
  • 6 bd | 4 ba | 3,160 sqft
  • 4801 Sweetgrass Lane, Colorado Springs, CO, 80922 listed by Mary Biga ABR AHWD MRP
  • Active
  • MLS#: 5186146
  • View on Map
Space maker

Property Description

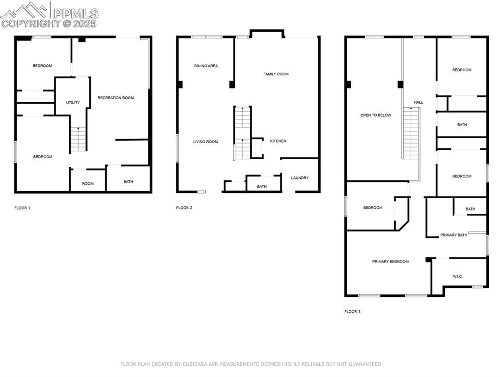
Welcome to this spacious six-bedroom, four-bath home located in the desirable Stetson Hills community. Picture the cozy front porch you can create on the 5x11 covered pace. The inviting two-story layout features a vaulted living room and dining room space that makes one fantastic “Great-Room. The kitchen boasts nice breakfast bar, abundant cabinetry and quartz countertops. The additional space makes for a cozy main level family room with built-in and gas fireplace. The 15x7 back composite decks even offer natural gas line for uninterrupted grilling. Upstairs, you’ll find four bedrooms and a small loft area. The large primary suite has space for all your large furnishings as well as 5-pc bath suite and walk-in-closet. The fully finished walkout basement includes a wet bar, two additional bedrooms, and a second living space, perfect for guests or entertainment. Special feature is the through “glass” doggy door! This home offers plenty of space, comfort, and functionality in a fantastic location close to parks, schools, and shopping.

Property Listed By

Picture of REALTOR Listing Property
  • Mary Biga ABR AHWD MRP
  • 4178-033-917  Call the Agent 
Picture of Office Listing Property
  • Davidson Biga Realty, Inc.
  • 2221-225-917  Call the Agent 
Davidson Biga Realty, Inc. Managing Broker/President September 1997 to Present Davidson Property Management, Inc. Vice President April 2005 to Present Pikes Peak Association of Realtors Member since 2001 Pikes Peak Association of Realtors Board of Director Elected September 2020 to Present Awards & Recognition with PPAR 2022 Good Neighbor Recipient Award Winner 2021 Extra Mile Award 2019 Leadership Academy Graduate Women's Council of Realtors 2...

Property Details

    General Features

  • Property: Single Family, 2 Story
  • Year Built: 1999
  • List Price: $535,000
  • County: El Paso
  • School District: District 49

    Rooms

  • Master: Upper Level, 14 x 16
  • Bedrooms: 6
  • Baths: 2 full bath; 1 1/2 bath; 1 3/4 bath;
  • Master Bathroom Amenities: 5-Pc Bath, Double Vanity, Free-standing Shower, Tub
  • Laundry: Electric Hook-up, Main

    Structure

  • Foundation: Full Basement
  • Heating: Forced Air, Natural Gas
  • Cooling: Ceiling Fan
  • Garage/Parking #: 2 vehicle(s), Attached
  • Patio Description: Wood Deck
  • Total SqFt: 3,160
  • Finished SqFt: 3,110
  • Basement SqFt: 990
  • Basement % Fin: 95
  • Construction Status: Existing Home
  • Siding: Masonite Type
  • Structure: Frame

    Features

  • Appliances: Dishwasher, Disposal, Microwave Oven, Oven, Range, Refrigerator
  • Floors: Carpet, Ceramic Tile, Tile, Wood Laminate
  • Fireplace: Gas, Main Level
  • Additional Items: Washer & Dryer
  • Interior Features: Vaulted Ceilings
  • Laundry: Electric Hook-up, Main

    Taxes, Utilities, Lot

  • Tax: $1,998
  • Lot Size: 0.14 Acres, 6,218 SqFt
  • Lot Location: Hiking Trail, Near Fire Station, Near Hospital, Near Park, Near Public Transit, Near Schools, Near Shopping Center
  • Lot Description: Mountain View, Sloping
  • Existing Utilities: Electricity Available, Natural Gas Available
  • Existing Water: Municipal

    Community

  • Covenants: Yes

    Additional Information


      Disclaimer
      The real estate listing information and related content displayed on this site is provided exclusively for consumers’ personal, non-commercial use and may not be used for any purpose other than to identify prospective properties consumers may be interested in purchasing.
      PPAR.com Website

      4801 Sweetgrass Lane, Colorado Springs, CO, 80922

      Image 1 of 44: Front of Structure

      Front of Structure

      Image 2 of 44: Front of Structure

      Front of Structure

      Image 3 of 44: Living Room

      Living Room

      Image 4 of 44: Virtually Staged

      Virtually Staged

      Image 5 of 44: Entry

      Entry

      Image 6 of 44: Entry

      Entry

      Image 7 of 44: Living Room

      Living Room

      Image 8 of 44: Other

      Other

      Image 9 of 44: Living Room

      Living Room

      Image 10 of 44: Kitchen

      Kitchen

      Image 11 of 44: Living Room

      Living Room

      Image 12 of 44: Kitchen

      Kitchen

      Image 13 of 44: Kitchen

      Kitchen

      Image 14 of 44: Kitchen

      Kitchen

      Image 15 of 44: Loft

      Loft

      Image 16 of 44: Upper Loft/Landing

      Upper Loft/Landing

      Image 17 of 44: Master Bedroom

      Master Bedroom

      Image 18 of 44: Virtually Staged

      Virtually Staged

      Image 19 of 44: Master Bedroom

      Master Bedroom

      Image 20 of 44: Master Bedroom

      Master Bedroom

      Image 21 of 44: Master Bathroom

      Master Bathroom

      Image 22 of 44: Master Bathroom

      Master Bathroom

      Image 23 of 44: Bedroom #2

      Bedroom #2

      Image 24 of 44: Bedroom #2

      Bedroom #2

      Image 25 of 44: Bathroom

      Bathroom

      Image 26 of 44: Bedroom #3

      Bedroom #3

      Image 27 of 44: Bedroom #3

      Bedroom #3

      Image 28 of 44: Virtually Staged
Bedroom #3

      Virtually Staged Bedroom #3

      Image 29 of 44: Bedroom #4

      Bedroom #4

      Image 30 of 44: Bedroom #4

      Bedroom #4

      Image 31 of 44: 2nd Family space in basement

      2nd Family space in basement

      Image 32 of 44: 2nd family space in basement

      2nd family space in basement

      Image 33 of 44: Virtually Staged
2nd family space in basement

      Virtually Staged 2nd family space in basement

      Image 34 of 44: Bedroom #5

      Bedroom #5

      Image 35 of 44: Bedroom #5

      Bedroom #5

      Image 36 of 44: Basement Bath

      Basement Bath

      Image 37 of 44: Bedroom #6

      Bedroom #6

      Image 38 of 44: Bedroom #6

      Bedroom #6

      Image 39 of 44: Deck

      Deck

      Image 40 of 44: Deck

      Deck

      Image 41 of 44: Back of Structure

      Back of Structure

      Image 42 of 44: Back of Structure

      Back of Structure

      Image 43 of 44: Patio

      Patio

      Image 44 of 44: Floor Plan

      Floor Plan

      Disclaimer: The real estate listing information and related content displayed on this site is provided exclusively for consumers’ personal, non-commercial use and may not be used for any purpose other than to identify prospective properties consumers may be interested in purchasing.