705 Belleza View, Colorado Springs, CO, 80907

Rear view of property featuring a garage

Other

View of mountain background

Back of house with a shingled roof and a mountain view

View of mountain background

Mountain view

View of mountain backdrop featuring nearby suburban area

Mountain view

Mountain view with nearby suburban area

View of mountain background with nearby suburban area

Mountain view featuring nearby suburban area

Mountain view

Mountain view with rural landscape

View of mountain backdrop

View of mountain backdrop

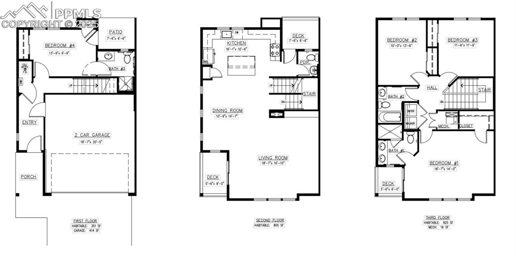
Home floor plan
Disclaimer: The real estate listing information and related content displayed on this site is provided exclusively for consumers’ personal, non-commercial use and may not be used for any purpose other than to identify prospective properties consumers may be interested in purchasing.