3616 Iguana Drive, Colorado Springs, CO, 80910

Image Count: 29

$214,900

  • Highlights
  • Condo
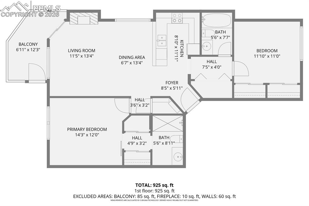
  • 2 bd | 2 ba | 992 sqft
  • 3616 Iguana Drive, Colorado Springs, CO, 80910 listed by Vanessa Guzman
  • Active
  • MLS#: 2333492
  • View on Map
Space maker

Property Description

Move-in ready 2-bedroom, 2-bath end-unit condo featuring a desirable ground-level layout and excellent natural flow. This home offers a split-bedroom design, open living and dining areas, and a private balcony perfect for relaxing or entertaining. Includes a detached 1-car garage, additional assigned parking, and a portable air conditioning unit for added comfort.

Property Listed By

Picture of REALTOR Listing Property
  • Vanessa Guzman
  • 5316-609-303  Call the Agent 
Picture of Office Listing Property
  • Telos Real Estate Advisors
  • 5316-609-303  Call the Agent 

Property Details

    General Features

  • Property: Condo, Ranch
  • Attached: Yes
  • Year Built: 1983
  • List Price: $214,900
  • County: El Paso
  • School District: Harrison-2

    Rooms

  • Master: Main Level, 12 x 14
  • Bedrooms: 2
  • Baths: 1 full bath; 1 3/4 bath;
  • Laundry: Main

    Structure

  • Unit Description: End Unit, Ground Floor
  • Heating: Forced Air
  • Garage/Parking #: 2 vehicle(s), Assigned, Detached
  • Total SqFt: 992
  • Finished SqFt: 992
  • Construction Status: Existing Home
  • Siding: Brick, Masonite Type
  • Structure: Frame

    Features

  • Appliances: Dishwasher, Dryer, Microwave Oven, Oven, Range, Refrigerator, Washer
  • Floors: Wood Laminate
  • Entry: Wood Laminate
  • Fireplace: Main Level
  • Laundry: Main

    Taxes, Utilities, Lot

  • Tax: $676
  • Lot Description: Level, Trees/Woods
  • Existing Utilities: Electricity Connected, Natural Gas Connected
  • Existing Water: Assoc/Distr

    Community

  • Covenants: Yes
  • HOA Dues: $350
  • HOA Frequency: Monthly
  • HOA Fee Includes: Maintenance Grounds, Management, Trash Removal, Water
  • Complex Amenities: Club House, Pool

    Additional Information


      Disclaimer
      The real estate listing information and related content displayed on this site is provided exclusively for consumers’ personal, non-commercial use and may not be used for any purpose other than to identify prospective properties consumers may be interested in purchasing.
      PPAR.com Website

      3616 Iguana Drive, Colorado Springs, CO, 80910

      Image 1 of 29: Entry

      Entry

      Image 2 of 29: Front of Structure

      Front of Structure

      Image 3 of 29: Side of Structure

      Side of Structure

      Image 4 of 29: Living Room

      Living Room

      Image 5 of 29: Living Room

      Living Room

      Image 6 of 29: Living Room

      Living Room

      Image 7 of 29: Dining Area

      Dining Area

      Image 8 of 29: Dining Area

      Dining Area

      Image 9 of 29: Dining Area

      Dining Area

      Image 10 of 29: Kitchen

      Kitchen

      Image 11 of 29: Kitchen

      Kitchen

      Image 12 of 29: Kitchen

      Kitchen

      Image 13 of 29: Kitchen

      Kitchen

      Image 14 of 29: Bathroom

      Bathroom

      Image 15 of 29: Bedroom

      Bedroom

      Image 16 of 29: Bedroom

      Bedroom

      Image 17 of 29: Bedroom

      Bedroom

      Image 18 of 29: Bathroom

      Bathroom

      Image 19 of 29: Balcony

      Balcony

      Image 20 of 29: Balcony

      Balcony

      Image 21 of 29: Entry

      Entry

      Image 22 of 29: Bedroom

      Bedroom

      Image 23 of 29: Bedroom

      Bedroom

      Image 24 of 29: Bedroom

      Bedroom

      Image 25 of 29: Bathroom

      Bathroom

      Image 26 of 29: Bathroom

      Bathroom

      Image 27 of 29: Back of Structure

      Back of Structure

      Image 28 of 29: Pool

      Pool

      Image 29 of 29: Floor Plan

      Floor Plan

      Disclaimer: The real estate listing information and related content displayed on this site is provided exclusively for consumers’ personal, non-commercial use and may not be used for any purpose other than to identify prospective properties consumers may be interested in purchasing.