5606 Vermillion Bluffs Drive, Colorado Springs, CO, 80923

Image Count: 34

$449,900

  • Highlights
  • Open House — Single Family
  • 3 bd | 3 ba | 2,506 sqft
  • 5606 Vermillion Bluffs Drive, Colorado Springs, CO, 80923 listed by Vinh Lam
  • Active
  • MLS#: 1331648
  • View on Map
  • Golden Key Icon
Space maker
Open House - Public: 1:00-3:00, 4/12/2026

Property Description

Welcome to 5606 Vermillion Bluffs Drive, nestled in the highly sought-after Ridgeview at Stetson Hills community. This beautifully maintained 3-bedroom, 2.5-bath residence offers over 2,000 square feet of thoughtfully designed living space, seamlessly blending modern style with everyday comfort. Step inside to an inviting, light-filled interior where the open layout creates a natural flow between living, dining, and entertaining areas. The home is designed for both functionality and ease, making it ideal for daily living as well as hosting guests. Upstairs, you’ll find three generously sized bedrooms, including a well-appointed primary suite featuring its own private ensuite bath. A versatile loft adds even more value—perfect for a home office, media space, or cozy retreat tailored to your lifestyle. The location truly sets this home apart. Ideally situated in a desirable Colorado Springs neighborhood, you’ll enjoy convenient access to Highway 21 for an easy commute, along with close proximity to shopping, dining, grocery stores, and entertainment. Being part of a highly regarded school district further enhances the home’s long-term appeal. Whether you’re a first-time homebuyer or seeking a strong investment opportunity, this move-in ready home offers the perfect balance of comfort, flexibility, and location. Don’t miss your opportunity to own a well-appointed home with a versatile loft in one of Colorado Springs’ most convenient and growing areas.

Property Listed By

Picture of REALTOR Listing Property
  • Vinh Lam
  • 9882-356-303  Call the Agent 
Picture of Office Listing Property
  • Coldwell Banker Realty
  • 3375-023-303  Call the Agent 

Property Details

    General Features

  • Property: Single Family, Tri-Level
  • Year Built: 2002
  • List Price: $449,900
  • County: El Paso
  • School District: District 49

    Rooms

  • Bedrooms: 3
  • Baths: 1 full bath; 1 1/2 bath; 1 3/4 bath;

    Structure

  • Foundation: Partial Basement
  • Heating: Forced Air, Natural Gas
  • Garage/Parking #: 2 vehicle(s), Attached
  • Total SqFt: 2,506
  • Finished SqFt: 1,570
  • Basement SqFt: 468
  • Construction Status: Existing Home
  • Siding: Alum/Vinyl/Steel
  • Structure: Frame

    Features

  • Appliances: Dishwasher, Disposal, Microwave Oven, Oven, Range, Refrigerator

    Taxes, Utilities, Lot

  • Tax: $1,575
  • Lot Size: 0.14 Acres, 6,100 SqFt
  • Lot Description: Level
  • Existing Utilities: Cable Available, Electricity Available
  • Existing Water: Municipal

    Community

  • Covenants: Yes
  • HOA Dues: $55
  • HOA Frequency: Quarterly

    Additional Information


      Disclaimer
      The real estate listing information and related content displayed on this site is provided exclusively for consumers’ personal, non-commercial use and may not be used for any purpose other than to identify prospective properties consumers may be interested in purchasing.
      PPAR.com Website

      5606 Vermillion Bluffs Drive, Colorado Springs, CO, 80923

      Image 1 of 34: Front of Structure

      Front of Structure

      Image 2 of 34: Front of Structure

      Front of Structure

      Image 3 of 34: Aerial View

      Aerial View

      Image 4 of 34: Living Room

      Living Room

      Image 5 of 34: Living Room

      Living Room

      Image 6 of 34: Kitchen

      Kitchen

      Image 7 of 34: Kitchen

      Kitchen

      Image 8 of 34: Kitchen

      Kitchen

      Image 9 of 34: Kitchen

      Kitchen

      Image 10 of 34: Dining Area

      Dining Area

      Image 11 of 34: Other

      Other

      Image 12 of 34: Other

      Other

      Image 13 of 34: Other

      Other

      Image 14 of 34: Other

      Other

      Image 15 of 34: Bathroom

      Bathroom

      Image 16 of 34: Laundry

      Laundry

      Image 17 of 34: Office

      Office

      Image 18 of 34: Bedroom

      Bedroom

      Image 19 of 34: Bedroom

      Bedroom

      Image 20 of 34: Bedroom

      Bedroom

      Image 21 of 34: Bathroom

      Bathroom

      Image 22 of 34: Bathroom

      Bathroom

      Image 23 of 34: Bedroom

      Bedroom

      Image 24 of 34: Bedroom

      Bedroom

      Image 25 of 34: Bedroom

      Bedroom

      Image 26 of 34: Bedroom

      Bedroom

      Image 27 of 34: Bathroom

      Bathroom

      Image 28 of 34: Bathroom

      Bathroom

      Image 29 of 34: Basement

      Basement

      Image 30 of 34: Basement

      Basement

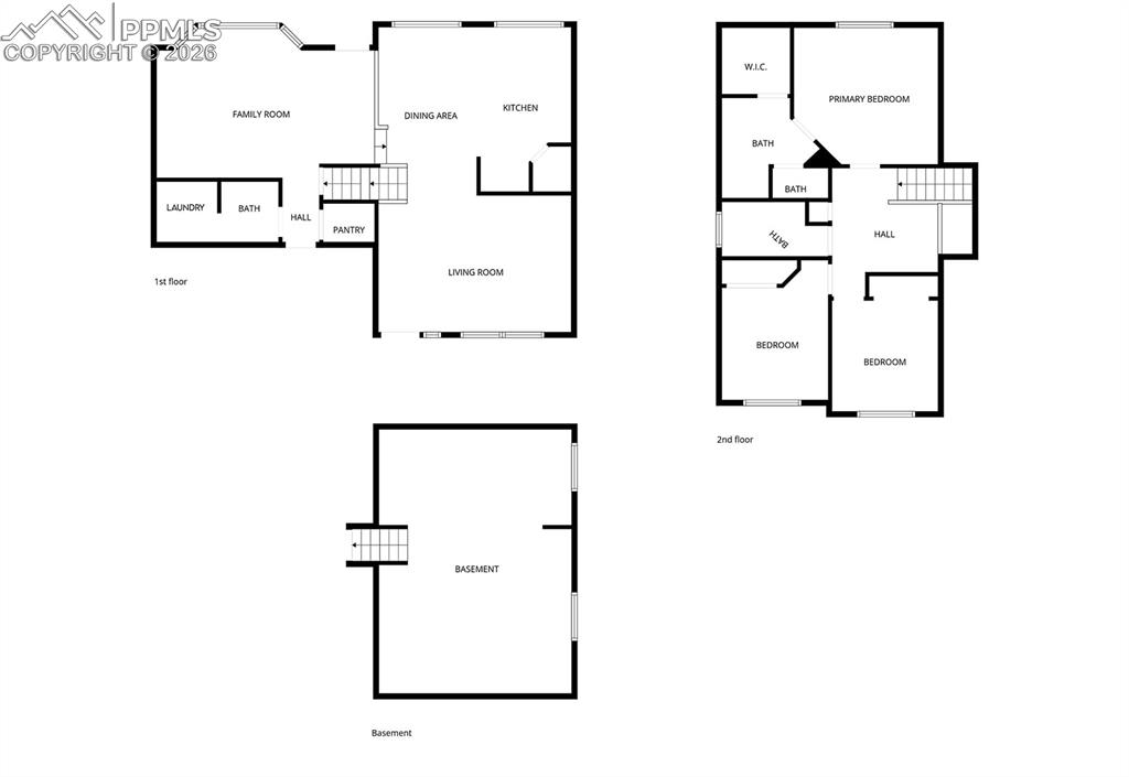
      Image 31 of 34: Floor Plan

      Floor Plan

      Image 32 of 34: Floor Plan

      Floor Plan

      Image 33 of 34: Floor Plan

      Floor Plan

      Image 34 of 34: Floor Plan

      Floor Plan

      Disclaimer: The real estate listing information and related content displayed on this site is provided exclusively for consumers’ personal, non-commercial use and may not be used for any purpose other than to identify prospective properties consumers may be interested in purchasing.