507 Yorktown Road, Cripple Creek, CO, 80813

Image Count: 50

$758,850

  • Highlights
  • Single Family
  • 3 bd | 3 ba | 2,400 sqft
  • 507 Yorktown Road, Cripple Creek, CO, 80813 listed by Thomas Ullrich
  • Active
  • MLS#: 1298729
  • Tour #1
  • View on Map
Space maker

Property Description

Close in mountain living with breathtaking views! Perfect as a primary home, vacation retreat or investment opportunity - great for an owner occupant or Airbnb. This beautiful custom home on a spacious 3 acre lot backs to open space and features 3 bedrooms (Primary on main, 2 secondary in basement), 2.5 baths, main floor great room, kitchen, finished walk-out basement (family room, 2 bedrooms, full bath) and a detached garage/workshop (2400 fin sq ft home + 720sq ft detached garage). The many windows allow the natural light to cascade in bright & cheerful and showcase the beautiful panoramic mountain views. The finished basement is perfect for guests or that teen wanting their own space. Beautiful upgrades and finishes including hickory cabinetry, slab granite in the kitchen, porcelain tile in the kitchen, wet bar in the walkout basement and wet rooms (baths & laundry)., vaulted / cathedral ceilings, multiple walk-out access points, custom lighting and more. Equipped with a 50-amp hookup for a hot tub and stubbed for gas on the deck - perfect for outdoor entertaining or just enjoying nature. Surrounded by beautiful foliage including Pine & Aspen Trees. A woodburning fireplace, 4-ton AC, ceiling fans and r-49 Climate Pro insulation throughout keeps this home comfortable all year long. Other features include a large garage/workshop with 10' doors and water hydrant, wiring for cable & ethernet; an upgraded 1800-gallon cistern, new septic, a 500-gallon propane tank and 220 service and more. The perfect blend of luxury and comfort makes this home a true oasis. Enjoy all that this stunning home and surrounding area has to offer. This home is a must see. Amenities abound in this fabulous community including a pool, clubhouse w/fitness center, fenced playground and library. Minutes from the town of Cripple Creek. Don't miss your opportunity. Welcome Home!

Property Listed By

Picture of REALTOR Listing Property
  • Thomas Ullrich
  • 6348-019-303  Call the Agent 
Picture of Office Listing Property
  • RE/MAX Professionals
  • 8989-997-303  Call the Agent 

Property Details

    General Features

  • Property: Single Family, Ranch
  • Year Built: 2021
  • List Price: $758,850
  • County: Teller
  • School District: Cripple Crk/Victor-RE1

    Rooms

  • Master: Main Level, 16 x 16
  • Bedrooms: 3
  • Baths: 2 full bath; 1 1/2 bath;
  • Master Bathroom Amenities: Free-standing Shower, Tub

    Structure

  • Foundation: Full Basement, Walk Out
  • Heating: Forced Air, Propane
  • Cooling: Ceiling Fan, Central Air
  • Garage/Parking #: 4 vehicle(s), Detached
  • Garage Amenities: Oversized, Workshop
  • Patio Description: Composite
  • Total SqFt: 2,400
  • Finished SqFt: 2,400
  • Basement SqFt: 1,200
  • Basement % Fin: 100
  • Construction Status: Existing Home
  • Siding: Stucco
  • Structure: Frame

    Features

  • Appliances: Dishwasher, Disposal, Microwave Oven, Range, Refrigerator, Self Cleaning Oven
  • Floors: Carpet, Tile, Wood
  • Entry: Natural Wood
  • Fireplace: Main Level, Wood Burning

    Taxes, Utilities, Lot

  • Tax: $1,569
  • Lot Size: 3.00 Acres, 130,680 SqFt
  • Lot Description: Backs to Open Space, Mountain View, Trees/Woods
  • Existing Utilities: Electricity Available, Electricity Connected, Propane
  • Existing Water: Cistern

    Community

  • Covenants: Yes
  • HOA Dues: $299
  • HOA Frequency: Annual
  • HOA Fee Includes: Other
  • Commmunity Features: Club House, Fitness Center, Hiking or Biking Trails, Parks or Open Space, Playground Area, Pool, Tennis
  • Pet Type: Bird, Cat, Dog

    Additional Information


      Disclaimer
      The real estate listing information and related content displayed on this site is provided exclusively for consumers’ personal, non-commercial use and may not be used for any purpose other than to identify prospective properties consumers may be interested in purchasing.
      PPAR.com Website

      507 Yorktown Road, Cripple Creek, CO, 80813

      Image 1 of 50: Front of Structure

      Front of Structure

      Image 2 of 50: Back of Structure

      Back of Structure

      Image 3 of 50: Front of Structure

      Front of Structure

      Image 4 of 50: Patio

      Patio

      Image 5 of 50: Living Room

      Living Room

      Image 6 of 50: Living Room

      Living Room

      Image 7 of 50: Living Room

      Living Room

      Image 8 of 50: Living Room

      Living Room

      Image 9 of 50: Living Room

      Living Room

      Image 10 of 50: Sun Room

      Sun Room

      Image 11 of 50: Dining Area

      Dining Area

      Image 12 of 50: Dining Area

      Dining Area

      Image 13 of 50: Dining Area

      Dining Area

      Image 14 of 50: Dining Area

      Dining Area

      Image 15 of 50: Other

      Other

      Image 16 of 50: Kitchen

      Kitchen

      Image 17 of 50: Kitchen

      Kitchen

      Image 18 of 50: Kitchen

      Kitchen

      Image 19 of 50: Kitchen

      Kitchen

      Image 20 of 50: Kitchen

      Kitchen

      Image 21 of 50: Bathroom

      Bathroom

      Image 22 of 50: Bedroom

      Bedroom

      Image 23 of 50: Bedroom

      Bedroom

      Image 24 of 50: Bedroom

      Bedroom

      Image 25 of 50: Bathroom

      Bathroom

      Image 26 of 50: Bathroom

      Bathroom

      Image 27 of 50: Bedroom

      Bedroom

      Image 28 of 50: Bedroom

      Bedroom

      Image 29 of 50: Bathroom

      Bathroom

      Image 30 of 50: Bedroom

      Bedroom

      Image 31 of 50: Bedroom

      Bedroom

      Image 32 of 50: Bedroom

      Bedroom

      Image 33 of 50: Living Room

      Living Room

      Image 34 of 50: Living Room

      Living Room

      Image 35 of 50: Living Room

      Living Room

      Image 36 of 50: Living Room

      Living Room

      Image 37 of 50: Dining Area

      Dining Area

      Image 38 of 50: Bar

      Bar

      Image 39 of 50: Deck

      Deck

      Image 40 of 50: Deck

      Deck

      Image 41 of 50: Deck

      Deck

      Image 42 of 50: Back of Structure

      Back of Structure

      Image 43 of 50: Back of Structure

      Back of Structure

      Image 44 of 50: Back of Structure

      Back of Structure

      Image 45 of 50: Aerial View

      Aerial View

      Image 46 of 50: Aerial View

      Aerial View

      Image 47 of 50: Out Buildings

      Out Buildings

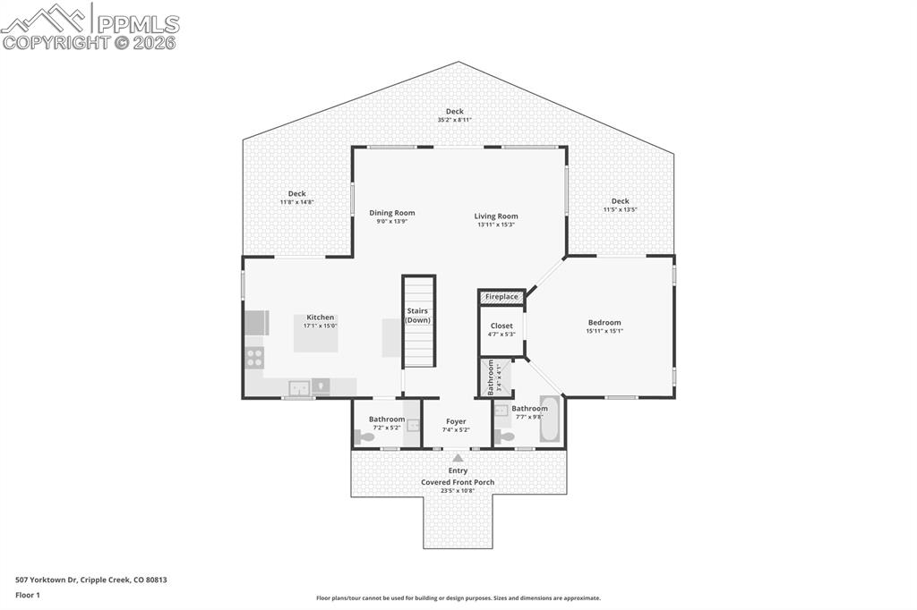
      Image 48 of 50: Floor Plan

      Floor Plan

      Image 49 of 50: Floor Plan

      Floor Plan

      Image 50 of 50: Pool

      Pool

      Disclaimer: The real estate listing information and related content displayed on this site is provided exclusively for consumers’ personal, non-commercial use and may not be used for any purpose other than to identify prospective properties consumers may be interested in purchasing.