5063 Sacred Feather Drive, Colorado Springs, CO, 80916

This attractive home features a spacious three-car garage and a wide driveway for ample parking. Clean lines, mature trees, and a welcoming façade enhance the overall appeal, making this property stand out in the neighborhood.

Charming curb appeal welcomes you with a covered front porch—an ideal spot to enjoy morning coffee or unwind in the evenings. Thoughtful landscaping and a well-maintained exterior create a warm first impression.

Charming covered front porch with seating area—ideal for relaxing and enjoying the neighborhood.

Step inside to a welcoming entryway featuring warm wood flooring and vaulted ceilings that create an immediate sense of openness. Convenient coat storage and clean sightlines into adjacent living spaces make this a functional and inviting first impression.

The open-concept living and kitchen area is perfect for everyday living and entertaining. Vaulted ceilings, skylights, and large windows fill the space with natural light, while the cozy fireplace adds warmth and charm.

Comfortable and inviting, the living room provides ample seating space—perfect for relaxing or gathering with family and friends.

Spacious living room featuring beautiful hardwood floors and an open layout that seamlessly connects to the kitchen. Large windows and vaulted ceilings enhance the light-filled, airy feel.

Enjoy easy access to the backyard through sliding glass doors, blending indoor and outdoor living while bringing in abundant natural light.

Vaulted ceilings, skylights, and thoughtful design elements create a bright and welcoming atmosphere throughout the main living area.

Enjoy casual dining in the bright eat-in kitchen area, highlighted by large windows that bring in natural light. The space is perfect for morning coffee or family meals.

The heart of the home features a bright, open-concept kitchen with warm wood cabinetry, granite countertops, and stainless steel appliances. A gas range and stylish tile backsplash add both function and flair, while pendant lighting creates a modern touch. The adjoining dining area is perfectly positioned by a large window, offering a comfortable space for everyday meals or entertaining guests.

Multiple angles showcase the kitchen’s efficient layout and generous counter space. The open sightlines to the living area create a seamless flow, ideal for hosting or staying connected with family. Elevated ceilings and decorative lighting add character and dimension to the space.

Enjoy casual dining with views of the outdoors, complemented by contemporary lighting and a cozy layout. This space easily accommodates a full dining set and serves as a natural gathering spot within the home.

This well-appointed kitchen features granite countertops, abundant cabinetry, and stainless steel appliances. The functional layout provides ample prep space and excellent flow for cooking and gathering.

Stylish finishes include a tile backsplash, upgraded fixtures, and quality cabinetry. The attention to detail adds both beauty and functionality to the heart of the home.

The kitchen offers a convenient pass-through to the living area, keeping you connected while entertaining. The double-basin sink and extended counter space make everyday tasks effortless.

A second full bath offers a spacious vanity, updated lighting, and a practical layout. The combination of natural finishes and efficient design ensures both comfort and convenience.

Thoughtfully designed with a seamless flow, this level offers easy access to the kitchen, living room, and bedrooms. Clean lines, neutral tones, and abundant natural light create an inviting atmosphere throughout.

Hallway with warm hardwood floors and an open-concept layout that immediately connects you to the main living areas. The upper-level hallway overlooks the living space below, enhancing the home’s bright and airy feel.

Dedicated office space with high ceilings and large windows, perfect for working from home or a quiet study area.

Functional and inviting workspace featuring built-in shelving and French doors, providing both privacy and style.

Generous layout with large windows and plenty of wall space, offering flexibility for various furniture arrangements.

Well-appointed primary suite with ample space for furnishings, complemented by warm wood tones and a ceiling fan for year-round comfort.

Spacious primary bedroom featuring vaulted ceilings, hardwood floors, and abundant natural light, creating a bright and relaxing retreat.

Vaulted ceilings, skylights, and Spacious primary bath featuring dual vanities, ample counter space, and a large mirror. The layout offers both functionality and comfort for daily routines.

Enjoy a well-appointed bathroom with separate shower and soaking tub, providing a relaxing retreat within the home.

Enjoy a spa-like experience with a soaking tub, separate glass-enclosed shower, and natural light enhancing the space.

Open and airy upper-level hallway overlooking the lower level, featuring hardwood flooring and easy access to bedrooms and living areas.

The basement level welcomes you with a clean, neutral hallway offering easy access to multiple rooms. Soft carpeting and light tones create a warm, inviting feel, while the efficient layout provides both functionality and flow.

Spacious and versatile, the finished basement offers a large family room perfect for entertaining, movie nights, or game day gatherings. Plush carpeting and multiple windows create a comfortable and inviting atmosphere, while the open layout provides flexibility for a variety of uses.

Additional angles highlight the expansive layout, offering plenty of room for oversized seating and entertainment setups. The open design easily accommodates a media area, play space, or home gym.

Designed with relaxation in mind, this space is ideal for a home theater setup, complete with room for a large screen and surround sound. Recessed lighting and neutral finishes enhance the cozy yet functional feel.

Convenient stair access connects the basement to the main level, with an open configuration that maintains a sense of flow. This level offers excellent potential for multi-use living.

Conveniently located laundry area with full-size washer and dryer, offering functional space for everyday chores and added storage.

Bright and cheerful, this bedroom features a large window and a unique geometric accent wall that adds personality and charm. The space is well-sized for a bedroom, office, or flex use, with neutral carpeting and easy access to the hallway.

Additional views highlight the room’s versatility, including mirrored closet doors that enhance light and create a more expansive feel. Clean lines and modern color choices make this a stylish and comfortable retreat.

This spacious bedroom stands out with its bold designer accent wall and generous layout. Large windows allow for natural light, while ample floor space accommodates a variety of furniture arrangements. The room also features direct access to nearby bath space and convenient storage options.

This light-filled bedroom offers a clean, neutral palette with plush carpeting and a large window that brings in natural light. Mirrored closet doors enhance the sense of space while providing ample storage, making this room both functional and inviting.

Another angle showcases the room’s functionality, including ample wall space for furniture and décor. The playful color palette makes this an ideal space for guests, family members, or creative use.

Clean and functional, this full bathroom features a tub/shower combo, extended vanity countertop, and ample mirror space. Neutral tones provide a bright and inviting feel, making it ideal for everyday use or guests.

Garage

Additional views highlight the garage’s generous size and functionality, complete with overhead lighting, shelving, and easy access. Plenty of room for tools, equipment, and recreational gear.

The oversized three-car garage is a standout feature, offering abundant space for vehicles, storage, and hobbies. Finished with durable flooring and built-in organization options, this space is perfect for a workshop or additional storage.

Step into your private outdoor retreat featuring a covered gazebo—perfect for dining, entertaining, or relaxing in the shade. The patio area creates a seamless extension of the home’s living space.

Unwind in the backyard hot tub, offering a perfect place to relax year-round. Paired with the gazebo and seating area, this outdoor space is designed for comfort and enjoyment.

Enjoy outdoor evenings around the dedicated fire pit area, perfect for gathering with friends and family. The open yard provides plenty of space for recreation while maintaining a comfortable setting for relaxation.

The side yard provides a clean and functional walkway with gated access, ideal for storage, pets, or easy movement between the front and backyard. Durable surfaces and fencing add both practicality and privacy.

A thoughtfully designed side yard offers a dedicated dog run with low-maintenance turf and secure fencing—perfect for pets. The space also includes additional storage solutions and convenient access along the side of the home.

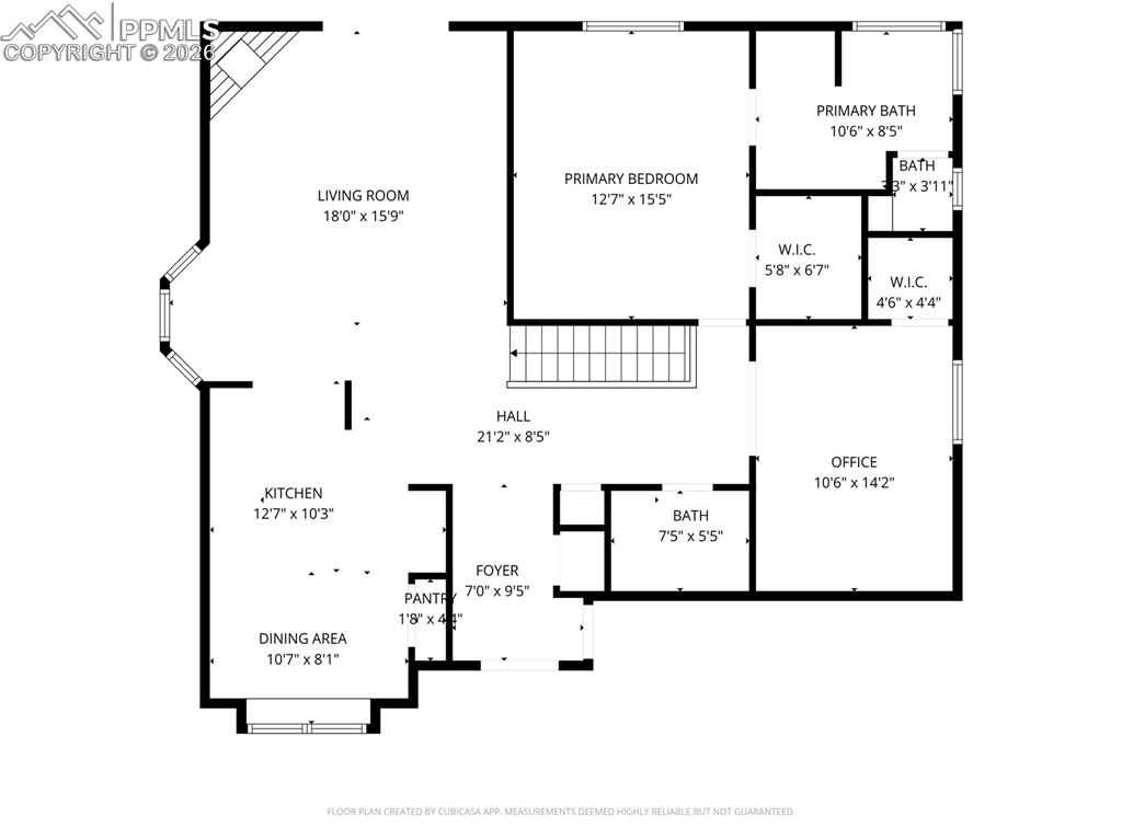
Main level

Basement
Disclaimer: The real estate listing information and related content displayed on this site is provided exclusively for consumers’ personal, non-commercial use and may not be used for any purpose other than to identify prospective properties consumers may be interested in purchasing.