4925 Wandering Circle, Colorado Springs, CO, 80917

Front of Structure

Front of Structure

Entry

Living Room

Living Room

Kitchen

Kitchen

Other

Kitchen

Bedroom

Bathroom

Bedroom

Bedroom

Family Room

Basement

Other

Bedroom

Full bath featuring vanity and shower / washtub combination

Unfurnished bedroom featuring a closet and light colored carpet

Rear view of property with a shingled roof and a wooden deck

View from above of property with a mountainous background

View of subject property

Aerial view of residential area featuring a mountain backdrop

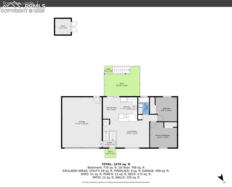
View of home floor plan

View of room layout

View of room layout
Disclaimer: The real estate listing information and related content displayed on this site is provided exclusively for consumers’ personal, non-commercial use and may not be used for any purpose other than to identify prospective properties consumers may be interested in purchasing.