3110 Woodland Avenue, Pueblo, CO, 81005

Image Count: 45

$329,900

  • Highlights
  • Single Family
  • 4 bd | 2 ba | 2,028 sqft
  • 3110 Woodland Avenue, Pueblo, CO, 81005 listed by Angela Torri
  • Active
  • MLS#: 6091174
  • Tour #1
  • View on Map
Space maker

Property Description

Step inside 3110 Woodland Ave and discover a showstopper renovation from top to bottom. This 4-bed, 2-bath, 2,028 sq ft ranch style home has been reimagined with designer taste: a head-turning kitchen featuring dual-tone shaker cabinetry, quartz counters, bold emerald subway tile backsplash, a built-in microwave drawer, and a full stainless appliance suite. The open living area wows with a custom board-and-batten accent wall, modern ceiling fan, and beautiful new LVP flooring throughout. Bonus space off the back of the home for additional living/office/etc. Both bathrooms are fully renovated — the main bath offers dual vanities with warm wood tones and sleek black fixtures, plus a stunning marble-look tiled tub surround; the basement bath features a glass-enclosed tiled shower. Two main-floor bedrooms plus two non-conforming basement bedrooms provide flexible space for every lifestyle. Outside: xeriscaped front yard for low-maintenance living, a detached 2-car garage, and a covered carport. Big-ticket items done — new roof (July 2025), new windows, all new flooring, cabinets, counters, fixtures, and appliances. Just move in.

Property Listed By

Picture of REALTOR Listing Property
  • Angela Torri
  • 7586-433-917  Call the Agent 
Picture of Office Listing Property
  • Sorella Real Estate LLC
  • 8774-126-917  Call the Agent 

Property Details

    General Features

  • Property: Single Family, Ranch
  • Year Built: 1953
  • List Price: $329,900
  • County: Pueblo
  • School District: Pueblo-60

    Rooms

  • Master: Main Level, 13 x 11
  • Bedrooms: 4
  • Baths: 1 full bath; 1 3/4 bath;
  • Laundry: Basement

    Structure

  • Foundation: Full Basement
  • Heating: Forced Air, Natural Gas
  • Cooling: Ceiling Fan, Central Air
  • Garage/Parking #: 4 vehicle(s), Carport, Detached
  • Patio Description: Concrete
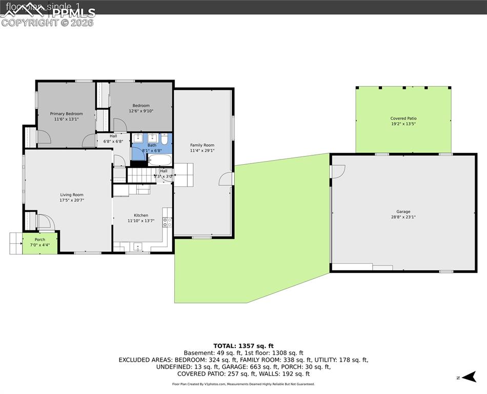
  • Total SqFt: 2,028
  • Finished SqFt: 1,916
  • Basement SqFt: 1,014
  • Basement % Fin: 89
  • Construction Status: Existing Home
  • Siding: Stucco, Wood
  • Structure: Framed on Lot, Frame

    Features

  • Appliances: Dishwasher, Microwave Oven, Oven, Range, Refrigerator
  • Floors: Carpet
  • Laundry: Basement

    Taxes, Utilities, Lot

  • Tax: $1,908
  • Lot Size: 0.14 Acres, 6,098 SqFt
  • Street Description: City/Town Road, Paved
  • Landscaped: Front
  • Fence: Rear
  • Driveway: Gravel
  • Lot Description: Level
  • Existing Utilities: Electricity Connected, Natural Gas Connected
  • Existing Water: Municipal

    Community

    Additional Information

  • Notices: Lead Base Paint Discl Req

      Disclaimer
      The real estate listing information and related content displayed on this site is provided exclusively for consumers’ personal, non-commercial use and may not be used for any purpose other than to identify prospective properties consumers may be interested in purchasing.
      PPAR.com Website

      3110 Woodland Avenue, Pueblo, CO, 81005

      Image 1 of 45: Front of Structure

      Front of Structure

      Image 2 of 45: Living Room

      Living Room

      Image 3 of 45: Kitchen

      Kitchen

      Image 4 of 45: Bathroom

      Bathroom

      Image 5 of 45: Living Room

      Living Room

      Image 6 of 45: Bedroom

      Bedroom

      Image 7 of 45: Other

      Other

      Image 8 of 45: Kitchen

      Kitchen

      Image 9 of 45: Kitchen

      Kitchen

      Image 10 of 45: Kitchen

      Kitchen

      Image 11 of 45: Other

      Other

      Image 12 of 45: Other

      Other

      Image 13 of 45: Bedroom

      Bedroom

      Image 14 of 45: Bathroom

      Bathroom

      Image 15 of 45: Other

      Other

      Image 16 of 45: Other

      Other

      Image 17 of 45: Basement

      Basement

      Image 18 of 45: Basement

      Basement

      Image 19 of 45: Basement

      Basement

      Image 20 of 45: Basement

      Basement

      Image 21 of 45: Basement

      Basement

      Image 22 of 45: Basement

      Basement

      Image 23 of 45: Basement

      Basement

      Image 24 of 45: Basement

      Basement

      Image 25 of 45: Basement

      Basement

      Image 26 of 45: Bathroom

      Bathroom

      Image 27 of 45: Bathroom

      Bathroom

      Image 28 of 45: Entry

      Entry

      Image 29 of 45: Other

      Other

      Image 30 of 45: Front of Structure

      Front of Structure

      Image 31 of 45: Side of Structure

      Side of Structure

      Image 32 of 45: Front of Structure

      Front of Structure

      Image 33 of 45: Front of Structure

      Front of Structure

      Image 34 of 45: Side of Structure

      Side of Structure

      Image 35 of 45: Front of Structure

      Front of Structure

      Image 36 of 45: Front of Structure

      Front of Structure

      Image 37 of 45: Aerial View

      Aerial View

      Image 38 of 45: Garage

      Garage

      Image 39 of 45: Other

      Other

      Image 40 of 45: Aerial View

      Aerial View

      Image 41 of 45: Aerial View

      Aerial View

      Image 42 of 45: Garage

      Garage

      Image 43 of 45: Floor Plan

      Floor Plan

      Image 44 of 45: Floor Plan

      Floor Plan

      Image 45 of 45: Floor Plan

      Floor Plan

      Disclaimer: The real estate listing information and related content displayed on this site is provided exclusively for consumers’ personal, non-commercial use and may not be used for any purpose other than to identify prospective properties consumers may be interested in purchasing.