5102 Athos Court, Pueblo, CO, 81005

Image Count: 50

$369,900

  • Highlights
  • Single Family
  • 4 bd | 4 ba | 2,248 sqft
  • 5102 Athos Court, Pueblo, CO, 81005 listed by Angela Torri
  • Active
  • MLS#: 9729478
  • Tour #1
  • View on Map
Space maker

Property Description

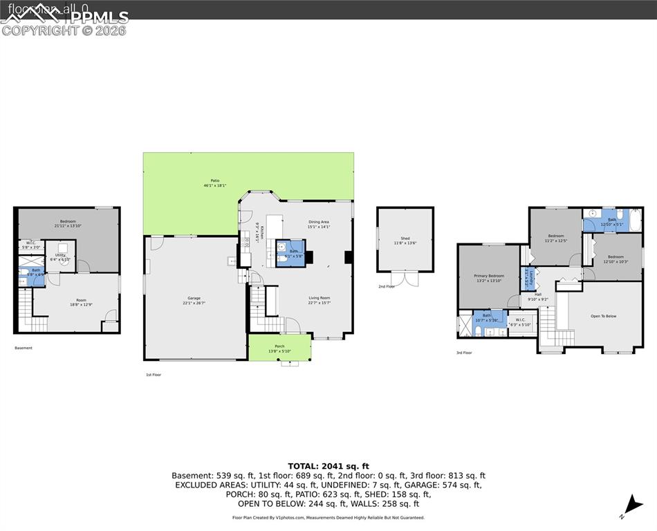
Tucked away on a peaceful south-side cul-de-sac, this beautifully remodeled 4-bed, 3.5-bath, 2,248 sq ft two-story sits on an expansive .34-acre lot and delivers the space, style, and updates today's buyers are searching for. From the moment you walk through the front door, the soaring vaulted ceilings and dramatic arched entryways set the tone — this home lives large. The main level flows effortlessly from the sun-drenched living room to a gorgeous updated kitchen featuring lovely cabinetry, quartz countertops, a farmhouse sink with matte black fixtures, stainless appliances, and a breakfast bar peninsula. A thoughtful built-in mudroom bench at the entry adds everyday function, and a half bath rounds out the main floor. Upstairs you'll find three bedrooms including a primary suite with a private ¾ bath featuring a stunning walk-in shower and spacious walk-in closet, plus a Jack-and-Jill full bath with tub serving the additional bedrooms, and convenient upper-level laundry. The finished basement adds a large 4th bedroom, ¾ bath, and flexible living space — perfect for guests, a home office, or a rec room. Every bath has been fully updated with quartz counters, warm wood tones, stylish mirrors, and marble-look tile. Outside, enjoy the large fenced yard, storage shed, and room to breathe — all with a new roof (July 2025), new flooring, cabinets, counters, fixtures, and appliances already done. Just move in.

Property Listed By

Picture of REALTOR Listing Property
  • Angela Torri
  • 7586-433-917  Call the Agent 
Picture of Office Listing Property
  • Sorella Real Estate LLC
  • 8774-126-917  Call the Agent 

Property Details

    General Features

  • Property: Single Family, 2 Story
  • Year Built: 1999
  • List Price: $369,900
  • County: Pueblo
  • School District: Pueblo-60

    Rooms

  • Master: Upper Level, 13 x 13
  • Bedrooms: 4
  • Baths: 1 full bath; 1 1/2 bath; 2 3/4 bath;
  • Laundry: Electric Hook-up, Upper

    Structure

  • Foundation: Partial Basement
  • Heating: Forced Air, Natural Gas
  • Cooling: Ceiling Fan, Central Air
  • Garage/Parking #: 2 vehicle(s), Attached
  • Patio Description: Concrete, Covered
  • Total SqFt: 2,248
  • Finished SqFt: 2,248
  • Basement SqFt: 698
  • Basement % Fin: 100
  • Construction Status: Existing Home
  • Siding: Wood
  • Structure: Framed on Lot, Frame

    Features

  • Appliances: Dishwasher, Microwave Oven, Oven, Range, Refrigerator
  • Floors: Carpet, Wood
  • Laundry: Electric Hook-up, Upper

    Taxes, Utilities, Lot

  • Tax: $1,895
  • Lot Size: 0.34 Acres, 14,810 SqFt
  • Street Description: City/Town Road, Paved
  • Fence: Rear
  • Driveway: Concrete
  • Lot Description: Sloping
  • Existing Utilities: Electricity Connected, Natural Gas Connected
  • Existing Water: Municipal

    Community

    Additional Information


      Disclaimer
      The real estate listing information and related content displayed on this site is provided exclusively for consumers’ personal, non-commercial use and may not be used for any purpose other than to identify prospective properties consumers may be interested in purchasing.
      PPAR.com Website

      5102 Athos Court, Pueblo, CO, 81005

      Image 1 of 50: Front of Structure

      Front of Structure

      Image 2 of 50: Front of Structure

      Front of Structure

      Image 3 of 50: Living Room

      Living Room

      Image 4 of 50: Kitchen

      Kitchen

      Image 5 of 50: Bathroom

      Bathroom

      Image 6 of 50: Entry

      Entry

      Image 7 of 50: Living Room

      Living Room

      Image 8 of 50: Other

      Other

      Image 9 of 50: Living Room

      Living Room

      Image 10 of 50: Kitchen

      Kitchen

      Image 11 of 50: Kitchen

      Kitchen

      Image 12 of 50: Kitchen

      Kitchen

      Image 13 of 50: Dining Area

      Dining Area

      Image 14 of 50: Bathroom

      Bathroom

      Image 15 of 50: Other

      Other

      Image 16 of 50: Other

      Other

      Image 17 of 50: Other

      Other

      Image 18 of 50: Other

      Other

      Image 19 of 50: Bedroom

      Bedroom

      Image 20 of 50: Other

      Other

      Image 21 of 50: Bathroom

      Bathroom

      Image 22 of 50: Bathroom

      Bathroom

      Image 23 of 50: Closet

      Closet

      Image 24 of 50: Laundry

      Laundry

      Image 25 of 50: Bedroom

      Bedroom

      Image 26 of 50: Bedroom

      Bedroom

      Image 27 of 50: Bathroom

      Bathroom

      Image 28 of 50: Bedroom

      Bedroom

      Image 29 of 50: Bedroom

      Bedroom

      Image 30 of 50: Bedroom

      Bedroom

      Image 31 of 50: Basement

      Basement

      Image 32 of 50: Bathroom

      Bathroom

      Image 33 of 50: Other

      Other

      Image 34 of 50: Other

      Other

      Image 35 of 50: Closet

      Closet

      Image 36 of 50: Front of Structure

      Front of Structure

      Image 37 of 50: Front of Structure

      Front of Structure

      Image 38 of 50: Front of Structure

      Front of Structure

      Image 39 of 50: Front of Structure

      Front of Structure

      Image 40 of 50: Front of Structure

      Front of Structure

      Image 41 of 50: Back of Structure

      Back of Structure

      Image 42 of 50: Back of Structure

      Back of Structure

      Image 43 of 50: Aerial View

      Aerial View

      Image 44 of 50: Back of Structure

      Back of Structure

      Image 45 of 50: Garage

      Garage

      Image 46 of 50: Storage

      Storage

      Image 47 of 50: Yard

      Yard

      Image 48 of 50: Back of Structure

      Back of Structure

      Image 49 of 50: Garage

      Garage

      Image 50 of 50: Floor Plan

      Floor Plan

      Disclaimer: The real estate listing information and related content displayed on this site is provided exclusively for consumers’ personal, non-commercial use and may not be used for any purpose other than to identify prospective properties consumers may be interested in purchasing.