5944 Sonesta Drive, Colorado Springs, CO, 80923

Front of Structure

Front of Structure

Open Concept Living Room w/gas fireplace.

Living Room

Dining Area

Dining Area

Kitchen

Kitchen

Kitchen

Kitchen

Dining Area

Primary Bedroom

Primary Bedroom on the Main Level

Main Level Bathroom

Secondary Bedroom on the Main Level

Bedroom

Bedroom in the Basement

Secondary Bedroom in the Basement

Laundry

Basement Bathroom

Large Family Room in the Basement

Family Room

Family Room

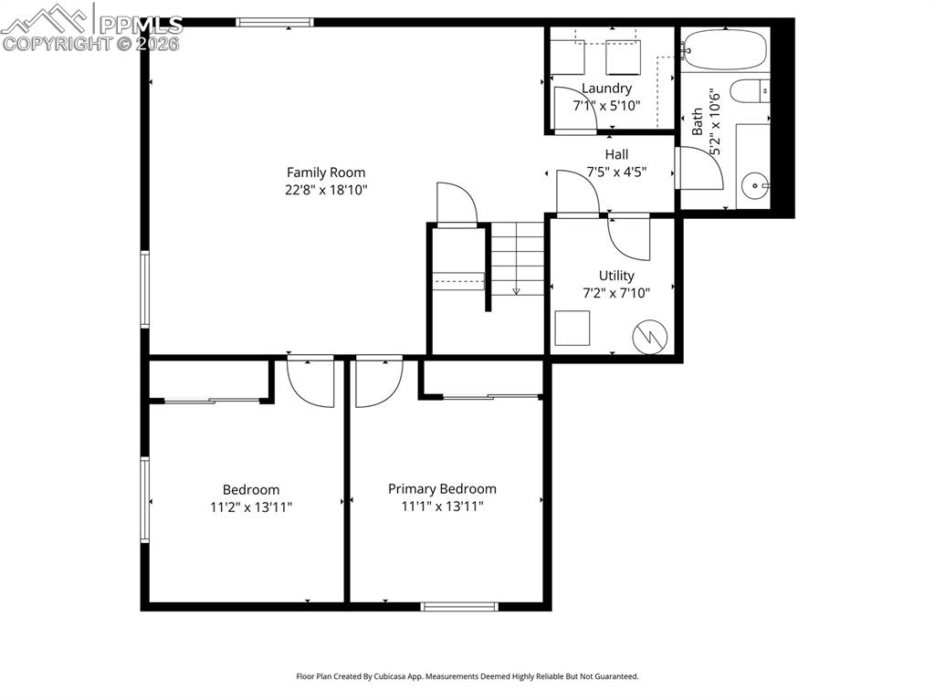
Basement

Main Level

Patio

Patio

Patio

Back of Structure

Patio

Patio

Deck

Patio

Back Deck, Patio, and Pergola

Patio

Patio

Patio
Disclaimer: The real estate listing information and related content displayed on this site is provided exclusively for consumers’ personal, non-commercial use and may not be used for any purpose other than to identify prospective properties consumers may be interested in purchasing.