824 Holmes Drive, Colorado Springs, CO, 80909

Front of Structure

Front of Structure

Entry

Stairway with baseboards

Living room with fresh paint and new ceiling fan

Living room with luxury vinyl plank flooring

Dining room

View of kitchen, dining and living rooms

Dining room with new ceiling fan

Kitchen featuring new cabinets and quartz countertops

Freshly updated kitchen

Kitchen with door to back deck

Kitchen with black appliances, white cabinetry, light wood finished floors, and recessed lighting

Lots of natural light in dining and living rooms

Stairs with a textured wall and wood finished floors

Living room and dining room

Primary bedroom with en-suite half bathroom

Primary en-suite half bath

Primary bedroom with en-suite half bathroom

Upstairs second bedroom

Upstairs second bedroom

Upstairs third bedroom

Upstairs hall full bathroom

Laundry area featuring washing machine and clothes dryer, light wood finished floors, and a textured wall

Lower level fourth bedroom

Lower level fourth bedroom

Lower level fifth bedroom

Lower level fifth bedroom with en-suite 3/4 bathroom

Lower level bathroom en-suite with fifth bedroom

Lower level fifth bedroom with en-suite 3/4 bathroom

New concrete back patio and AC

Large fully fenced backyard

Front of Structure

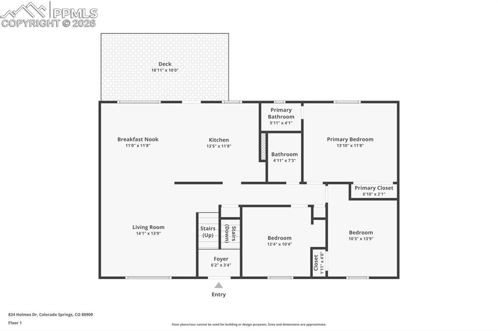
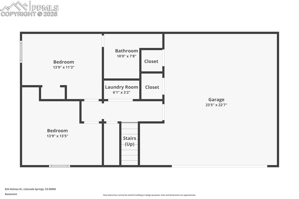
Floor Plan

Floor Plan

Floor Plan
Disclaimer: The real estate listing information and related content displayed on this site is provided exclusively for consumers’ personal, non-commercial use and may not be used for any purpose other than to identify prospective properties consumers may be interested in purchasing.