5627 Tramore Court, Colorado Springs, CO, 80927

Image Count: 27

$336,900

  • Highlights
  • Open House — Single Family
  • 2 bd | 2 ba | 1,089 sqft
  • 5627 Tramore Court, Colorado Springs, CO, 80927 listed by Leah Neumann
  • Active
  • MLS#: 7277184
  • Tour #1
  • View on Map
Space maker
Open House - Public: 11:00-2:00, 1/24/2026
Open House - Public: 11:00-2:00, 1/25/2026

Property Description

Come see this lovely two-story home in the popular Banning Lewis Ranch community, known as the “Moreno” model by Oakwood Homes. It feels almost brand-new, so you won't have to worry about construction delays—it's ready for you to move in right away! You'll enjoy the bright and modern kitchen with beautiful cabinets, a stylish tile backsplash, granite countertops, stainless steel appliances, and a deck right next to the kitchen. The house also has central A/C, a cozy electric fireplace, and strong LVP flooring. On the main level, there's a versatile bonus room that can be an office, playroom, or a nice study area. Plus, you have a two-car attached garage and a fenced side yard. Upstairs, the primary suite is a peaceful getaway with its own bathroom, a trendy shiplap wall, and a spacious walk-in closet. There is also another bedroom, a full bathroom, and a laundry area with a washer and dryer included—super convenient! Living in Banning Lewis Ranch means you can enjoy amazing community amenities like a pool, fitness center, parks, sports courts, and miles of trails. Welcome to your new home!

Property Listed By

Picture of REALTOR Listing Property
  • Leah Neumann
  • 8295-608-036  Call the Agent 
Picture of Office Listing Property
  • EXIT Realty DTC, Cherry Creek, Pikes Peak
  • 0027-097-303  Call the Agent 

Property Details

    General Features

  • Property: Single Family, 2 Story
  • Year Built: 2021
  • List Price: $336,900
  • County: El Paso
  • School District: District 49

    Rooms

  • Master: Upper Level, 14 x 12
  • Bedrooms: 2
  • Baths: 2 full bath;
  • Laundry: Upper

    Structure

  • Foundation: Slab
  • Heating: Active Solar, Forced Air
  • Cooling: Ceiling Fan, Central Air
  • Garage/Parking #: 2 vehicle(s), Attached
  • Total SqFt: 1,089
  • Finished SqFt: 1,089
  • Construction Status: Existing Home
  • Siding: Alum/Vinyl/Steel
  • Structure: Framed on Lot

    Features

  • Appliances: 220v in Kitchen, Dishwasher, Disposal, Gas in Kitchen, Microwave Oven, Oven, Range, Refrigerator, Self Cleaning Oven, Washer
  • Floors: Carpet
  • Fireplace: Electric
  • Laundry: Upper

    Taxes, Utilities, Lot

  • Tax: $2,612
  • Lot Size: 0.06 Acres, 2,509 SqFt
  • Landscaped: All
  • Fence: Front
  • Driveway: Concrete
  • Lot Location: Near Hospital, Near Schools
  • Lot Description: Level
  • Existing Utilities: Electricity Connected, Natural Gas Connected, Solar
  • Existing Water: Assoc/Distr

    Community

  • Covenants: Yes
  • HOA Dues: $175
  • HOA Frequency: Monthly
  • HOA Fee Includes: Covenant Enforcement, Maintenance Grounds, Management, Snow Removal, Trash Removal
  • Complex Amenities: Club House, Exercise Room, Playground, Pool, Recreation Room
  • Commmunity Features: Club House, Hiking or Biking Trails, Parks or Open Space, Playground Area, Pool

    Additional Information


      Disclaimer
      The real estate listing information and related content displayed on this site is provided exclusively for consumers’ personal, non-commercial use and may not be used for any purpose other than to identify prospective properties consumers may be interested in purchasing.
      PPAR.com Website

      5627 Tramore Court, Colorado Springs, CO, 80927

      Image 1 of 27: Side of Structure

      Side of Structure

      Image 2 of 27: Other

      Other

      Image 3 of 27: Entry

      Entry

      Image 4 of 27: Other

      Other

      Image 5 of 27: Entry

      Entry

      Image 6 of 27: Sitting Room

      Sitting Room

      Image 7 of 27: Other

      Other

      Image 8 of 27: Kitchen

      Kitchen

      Image 9 of 27: Kitchen

      Kitchen

      Image 10 of 27: Kitchen

      Kitchen

      Image 11 of 27: Sitting Room

      Sitting Room

      Image 12 of 27: Sitting Room

      Sitting Room

      Image 13 of 27: Bathroom

      Bathroom

      Image 14 of 27: Other

      Other

      Image 15 of 27: Bedroom

      Bedroom

      Image 16 of 27: Bedroom

      Bedroom

      Image 17 of 27: Bathroom

      Bathroom

      Image 18 of 27: Closet

      Closet

      Image 19 of 27: Balcony

      Balcony

      Image 20 of 27: Balcony

      Balcony

      Image 21 of 27: Deck

      Deck

      Image 22 of 27: Side of Structure

      Side of Structure

      Image 23 of 27: Other

      Other

      Image 24 of 27: Community

      Community

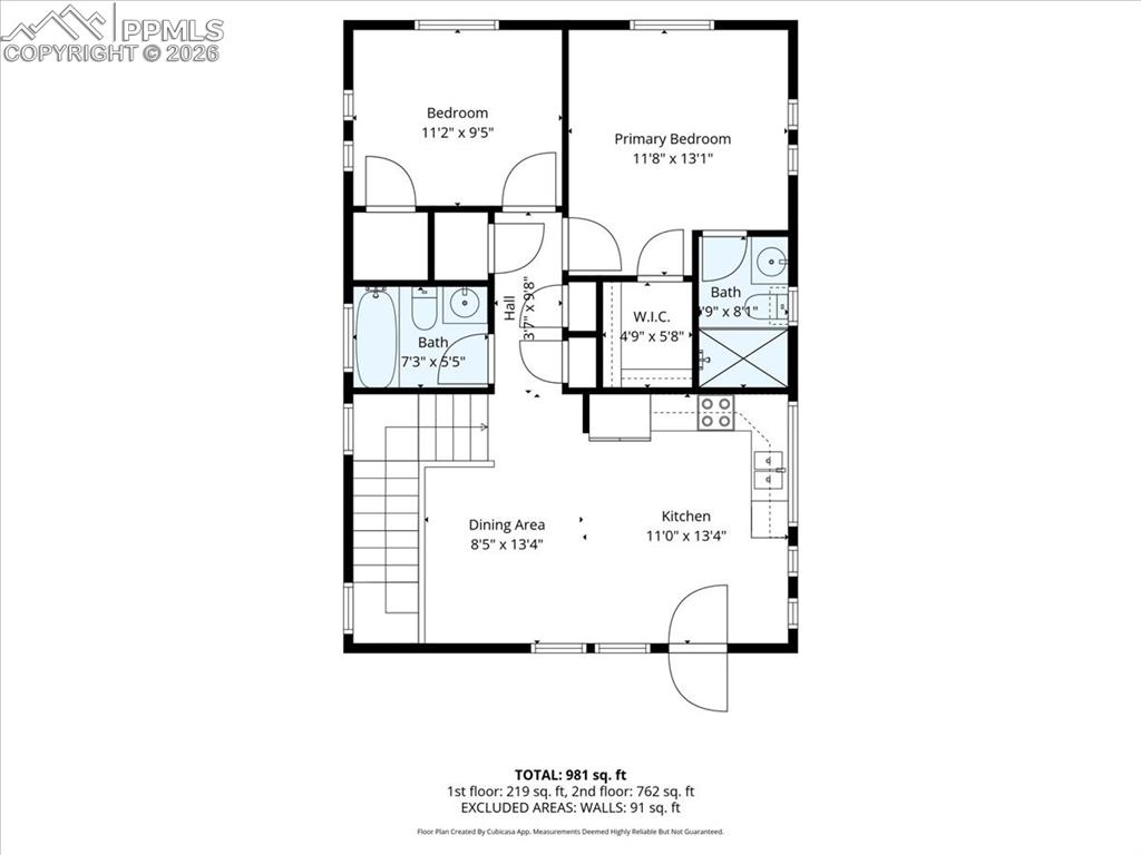
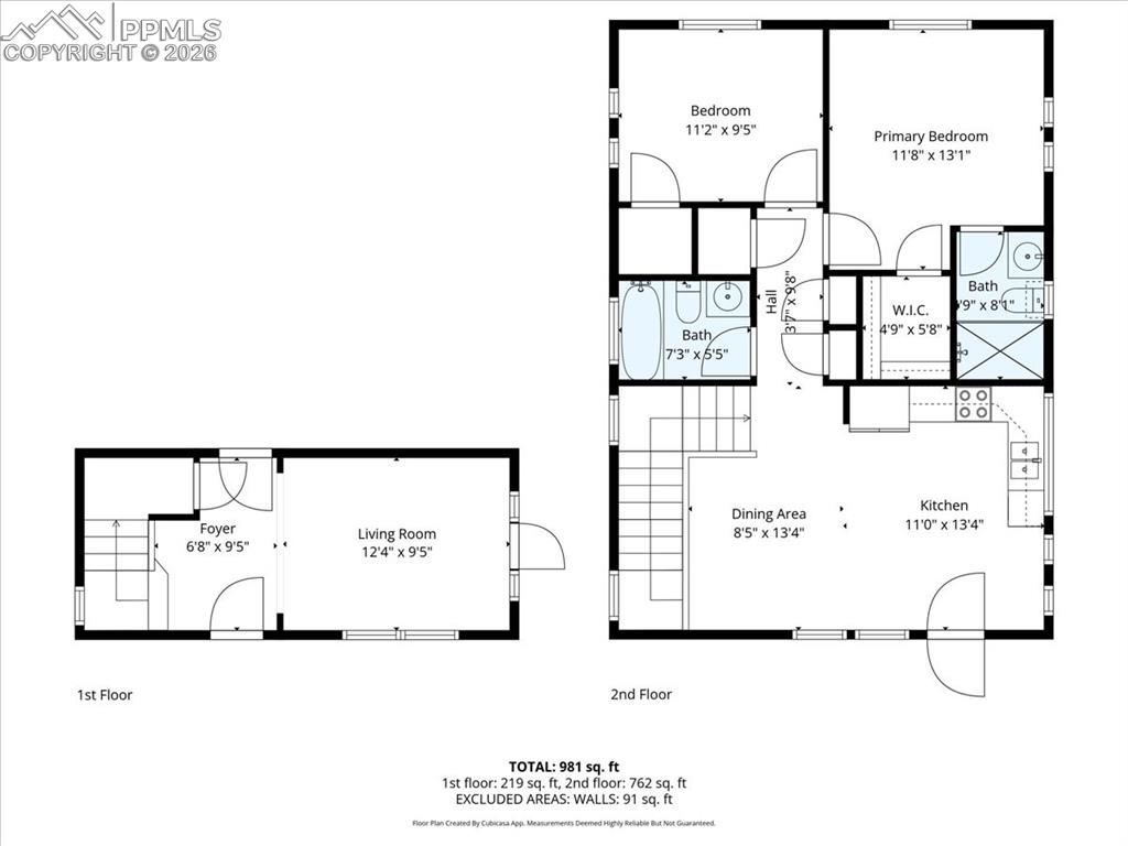
      Image 25 of 27: Floor Plan

      Floor Plan

      Image 26 of 27: Floor Plan

      Floor Plan

      Image 27 of 27: Floor Plan

      Floor Plan

      Disclaimer: The real estate listing information and related content displayed on this site is provided exclusively for consumers’ personal, non-commercial use and may not be used for any purpose other than to identify prospective properties consumers may be interested in purchasing.