10779 Spalding View, Colorado Springs, CO, 80908

Image Count: 36

$567,490

  • Highlights
  • Open House — Single Family — New Build
  • 4 bd | 4 ba | 2,263 sqft
  • 10779 Spalding View, Colorado Springs, CO, 80908 listed by Sarah Futa
  • Active
  • MLS#: 2695522
  • View on Map
  • Golden Key Icon
Space maker
Open House - Public: 10:00-3:00, 4/19/2026

Property Description

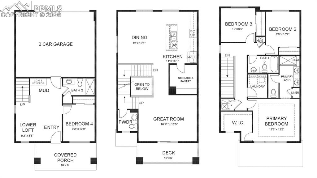
Move-in ready new construction 3-level home in one of Colorado Springs’ most convenient Northgate/Interquest locations! , this thoughtfully designed residence offers modern finishes, flexible living space, and exceptional access to everyday amenities. The attached 2-car garage opens to the entry level of this 3-level layout, featuring a private bedroom and full bath—ideal for guests, a home office, or multigenerational living. A versatile lower-level loft provides additional flex space for a media room, workout area, or study nook. The main living level is open and bright, showcasing a spacious great room that flows seamlessly into the kitchen and dining area. The kitchen features a large island, pantry storage, and generous cabinetry—perfect for entertaining or daily living. Step outside to the deck for easy indoor-outdoor enjoyment. Upstairs, the primary suite offers a private retreat with an ensuite bath, walk-in closet, and convenient upper-level laundry. Two additional bedrooms and a full bathroom complete the upper level, creating a functional and well-balanced floor plan. Located off Interquest Parkway, this home is just minutes from the Air Force Academy, Scheels, and popular dining options including In-N-Out, Whataburger, Torchy’s Tacos, and Dunkin’ Donuts. Enjoy quick access to I-25 and Powers Blvd / Highway 21, plus a community park within walking distance. If you’re looking for a move-in ready new construction single family home in Colorado Springs with a prime location and no waiting— delivers

Property Listed By

Picture of REALTOR Listing Property
  • Sarah Futa
  • 8627-749-303  Call the Agent 
Picture of Office Listing Property
  • Keller Williams Action Realty, LLC
  • 0038-886-303  Call the Agent 

Property Details

    General Features

  • Property: Single Family, Tri-Level
  • Year Built: 2025
  • List Price: $567,490
  • County: El Paso
  • School District: Academy-20

    Rooms

  • Master: Upper Level, 12 x 13
  • Bedrooms: 4
  • Baths: 1 full bath; 1 1/2 bath; 2 3/4 bath;

    Structure

  • Foundation: Slab
  • Heating: Forced Air
  • Cooling: Central Air
  • Garage/Parking #: 2 vehicle(s), Assigned
  • Total SqFt: 2,263
  • Finished SqFt: 2,263
  • Construction Status: New Construction
  • Siding: Fiber Cement, Stone
  • Structure: Framed on Lot

    Features

  • Appliances: Dishwasher, Disposal, Microwave Oven, Oven, Range, Refrigerator

    Taxes, Utilities, Lot

  • Tax: $1,824
  • Lot Size: 0.04 Acres, 1,800 SqFt
  • Lot Description: Level
  • Existing Utilities: Electricity Connected, Natural Gas Connected
  • Existing Water: Municipal

    Community

  • Covenants: Yes
  • HOA Dues: $94
  • HOA Frequency: Monthly
  • HOA Fee Includes: Covenant Enforcement, Management, Trash Removal

    Additional Information

  • Notices: Builder Owned

      Disclaimer
      The real estate listing information and related content displayed on this site is provided exclusively for consumers’ personal, non-commercial use and may not be used for any purpose other than to identify prospective properties consumers may be interested in purchasing.
      PPAR.com Website

      10779 Spalding View, Colorado Springs, CO, 80908

      Image 1 of 36: Front of Structure

      Front of Structure

      Image 2 of 36: Entry

      Entry

      Image 3 of 36: Back of Structure

      Back of Structure

      Image 4 of 36: Aerial View

      Aerial View

      Image 5 of 36: Other

      Other

      Image 6 of 36: Kitchen

      Kitchen

      Image 7 of 36: Kitchen

      Kitchen

      Image 8 of 36: Kitchen

      Kitchen

      Image 9 of 36: Other

      Other

      Image 10 of 36: Other

      Other

      Image 11 of 36: Bathroom

      Bathroom

      Image 12 of 36: Other

      Other

      Image 13 of 36: Bedroom

      Bedroom

      Image 14 of 36: Bathroom

      Bathroom

      Image 15 of 36: Bathroom

      Bathroom

      Image 16 of 36: Laundry

      Laundry

      Image 17 of 36: Bedroom

      Bedroom

      Image 18 of 36: Bedroom

      Bedroom

      Image 19 of 36: Other

      Other

      Image 20 of 36: Bedroom

      Bedroom

      Image 21 of 36: Bathroom

      Bathroom

      Image 22 of 36: Bedroom

      Bedroom

      Image 23 of 36: Other

      Other

      Image 24 of 36: Bathroom

      Bathroom

      Image 25 of 36: Bedroom

      Bedroom

      Image 26 of 36: Garage

      Garage

      Image 27 of 36: Floor Plan

      Floor Plan

      Image 28 of 36: Front of Structure

      Front of Structure

      Image 29 of 36: Side of Structure

      Side of Structure

      Image 30 of 36: Aerial View

      Aerial View

      Image 31 of 36: Aerial View

      Aerial View

      Image 32 of 36: Aerial View

      Aerial View

      Image 33 of 36: Aerial View

      Aerial View

      Image 34 of 36: Aerial View

      Aerial View

      Image 35 of 36: Aerial View

      Aerial View

      Image 36 of 36: Aerial View

      Aerial View

      Disclaimer: The real estate listing information and related content displayed on this site is provided exclusively for consumers’ personal, non-commercial use and may not be used for any purpose other than to identify prospective properties consumers may be interested in purchasing.