6225 Colony Circle, Colorado Springs, CO, 80919

Welcoming and covered front porch

Covered parking

Just off the entry is the main level living room

Coat closet

Gas fireplace with tile surround

Large picture window with window seat

Main level 1/2 bath

Dining room open to kitchen and walks out to back patio.

Breakfast bar.

Image 10 of 42

New cabinetry and granite countertops

Image 12 of 42

Garden window looking out to the neighborhood park.

Laundry closet

Lower level family room.

Image 16 of 42

Lower level 3/4 bath with updated vanity.

Spacious lower level bedroom

Image 19 of 42

Image 20 of 42

Upstairs bedroom with vaulted ceilings. Large picture window over looks the neighboring park.

Image 22 of 42

Double closet

Upstairs full bath with new vanity, lighting and flooring.

Upstairs bedroom 2 with vaulted ceilings.

Good sized closet space

Back patio

Image 28 of 42

Image 29 of 42

Image 30 of 42

Image 31 of 42

Image 32 of 42

Image 33 of 42

Image 34 of 42

Image 35 of 42

Image 36 of 42

Image 37 of 42

Image 38 of 42

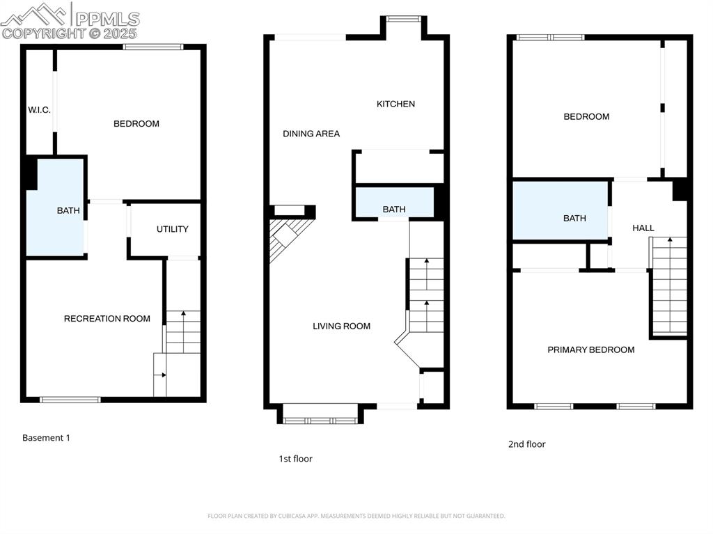
Main level floor plan

Lower level floor plan

Upstairs floor plan

Image 42 of 42
Disclaimer: The real estate listing information and related content displayed on this site is provided exclusively for consumers’ personal, non-commercial use and may not be used for any purpose other than to identify prospective properties consumers may be interested in purchasing.