4741 Barnes Road, Colorado Springs, CO, 80917

Welcome!

2 Car garage

Wood plank laminate flooring throughout

Recessed lighting

Open floor-plan

Beam ceiling

Unfurnished living room featuring recessed lighting, light wood-style flooring, and a glass covered fireplace

Wood fireplace

Tile backsplash

Modern cabinets

New faucet and sink

Quartz countertop

SS appliances

Kitchen with a peninsula, light stone countertops, open shelves, tasteful backsplash, and stainless steel appliances

Half bathroom featuring new vanity and toilet

Wood plank laminate flooring

Mountain views

Attached to the bathroom

Ceiling fan, large closet

Second bedroom

Double vanity

Full bath with tub / shower combination

Unfurnished bedroom with light wood-type flooring and a closet

Wood plank laminate flooring

Unfurnished bedroom featuring light wood-type flooring and a closet

Third bedroom

Spare room featuring light wood finished floors and baseboards

Unfurnished bedroom featuring light wood finished floors and a closet

Unfurnished bedroom with light wood-style flooring and a closet

Empty room with light wood-type flooring and baseboards

Laundry closet

Doorway to property

View of side of home with a yard and a chimney

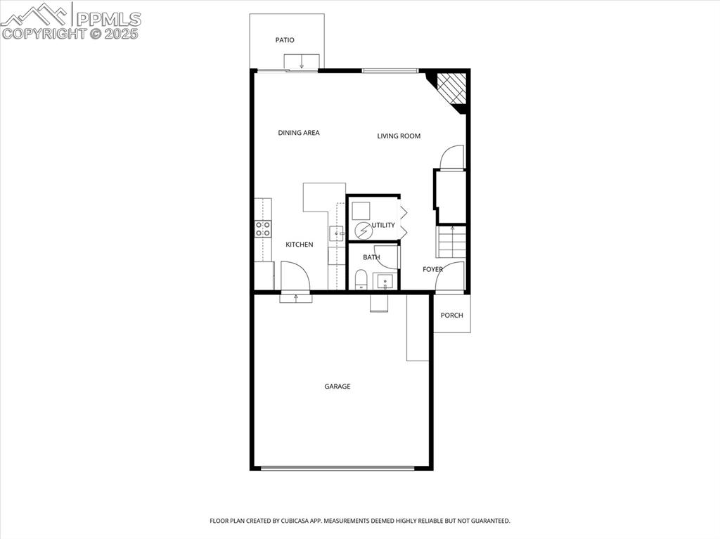
View of floor plan / room layout

View of property floor plan

View of room layout
Disclaimer: The real estate listing information and related content displayed on this site is provided exclusively for consumers’ personal, non-commercial use and may not be used for any purpose other than to identify prospective properties consumers may be interested in purchasing.