9144 Old Divide Drive, Colorado Springs, CO, 80908

Image Count: 3

$558,350

  • Highlights
  • Single Family — New Build
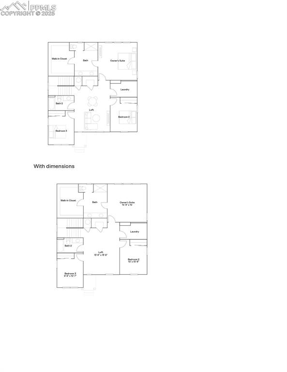
  • 4 bd | 3 ba | 2,073 sqft
  • 9144 Old Divide Drive, Colorado Springs, CO, 80908 listed by Thomas Ullrich
  • Active
  • MLS#: 9910295
  • View on Map
Space maker

Property Description

Anticipated completion January 2026! This gorgeous Marigold 2-story in Percheron features 4 beds (3 upper / 1 main), 2 baths, great room, kitchen, loft, 2 car garage and crawlspace. Beautiful upgrades and finishes throughout including vinyl plank floors, stainless steel appliances, slab Quartz counters and more. This builder provides the latest in energy efficiency and state of the art technology with several fabulous floorplans to choose from. Energy efficiency & technology/connectivity seamlessly blended with luxury to make your new house a home. What some builders consider high-end upgrades, the builder makes a standard inclusion. This community offers single family homes for every lifestyle. Close to dining, shopping, entertainment and other amenities. Don’t wait – this community will sell out quickly! Photos and walkthrough tour are model only and subject to change.

Property Listed By

Picture of REALTOR Listing Property
  • Thomas Ullrich
  • 6348-019-303  Call the Agent 
Picture of Office Listing Property
  • RE/MAX Professionals
  • 8989-997-303  Call the Agent 

Property Details

    General Features

  • Property: Single Family, 2 Story
  • Year Built: 2026
  • List Price: $558,350
  • County: El Paso
  • School District: District 49

    Rooms

  • Master: Upper Level, 14 x 15
  • Bedrooms: 4
  • Baths: 2 full bath; 1 3/4 bath;
  • Laundry: Upper

    Structure

  • Foundation: Crawl Space
  • Heating: Forced Air, Natural Gas
  • Cooling: Central Air
  • Garage/Parking #: 2 vehicle(s), Attached
  • Total SqFt: 2,073
  • Finished SqFt: 2,073
  • Construction Status: Under Construction
  • Structure: Frame

    Features

  • Appliances: Dishwasher, Disposal, Microwave Oven, Oven
  • Floors: Carpet, Tile, Vinyl/Linoleum
  • Laundry: Upper

    Taxes, Utilities, Lot

  • Tax: $5,494
  • Lot Size: 0.14 Acres, 6,000 SqFt
  • Lot Description: Level
  • Existing Utilities: Cable Available, Electricity Available, Natural Gas Available
  • Existing Water: Municipal

    Community

  • Covenants: Yes
  • HOA Dues: $30
  • HOA Frequency: Monthly
  • Pet Type: Bird, Cat, Dog, Reptile

    Additional Information

  • Notices: Builder Owned

      Disclaimer
      The real estate listing information and related content displayed on this site is provided exclusively for consumers’ personal, non-commercial use and may not be used for any purpose other than to identify prospective properties consumers may be interested in purchasing.
      PPAR.com Website

      9144 Old Divide Drive, Colorado Springs, CO, 80908

      Image 1 of 3: Front of Structure

      Front of Structure

      Image 2 of 3: Floor Plan

      Floor Plan

      Image 3 of 3: Floor Plan

      Floor Plan

      Disclaimer: The real estate listing information and related content displayed on this site is provided exclusively for consumers’ personal, non-commercial use and may not be used for any purpose other than to identify prospective properties consumers may be interested in purchasing.