6615 Annanhill Place, Colorado Springs, CO, 80922

Front of Structure

Living area with ceiling fan, gas fireplace and lots of windows for natural light.

Living Room

Kitchen featuring stainless steel appliances, gas range, dark stone counters, recessed lighting, and tasteful backsplash

Breakfast bar overlooking the living room and a spacious pantry

Kitchen

Kitchen

Dining Area

Office with built in bookshelves that can also be used as a third bedroom

Other

Other

Primary bedroom with a bay window and vaulted ceilings

Other

Bathroom

Bathroom

Other

Other

Secondary bathroom

Laundry

Fenced backyard featuring outdoor dining space, a patio area, and a pergola

Spacious unfinished basement

Garage

Fenced backyard with outdoor dining space, a pergola, a patio area, and a storage shed

Multiple garden beds

Fenced backyard featuring a gate

View of fenced backyard

Back of Structure

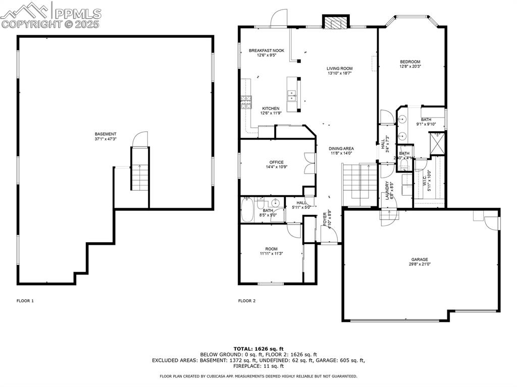
View of home floor plan

Front of Structure

Craftsman inspired home featuring a porch, stone siding, and concrete driveway
Disclaimer: The real estate listing information and related content displayed on this site is provided exclusively for consumers’ personal, non-commercial use and may not be used for any purpose other than to identify prospective properties consumers may be interested in purchasing.