367 S Queen Circle, Lakewood, CO, 80226

Image Count: 50

$625,000

  • Highlights
  • Single Family
  • 4 bd | 3 ba | 1,872 sqft
  • 367 S Queen Circle, Lakewood, CO, 80226 listed by Ivan Hernandez
  • Active
  • MLS#: 2925487
  • Tour #1
  • View on Map
Space maker

Property Description

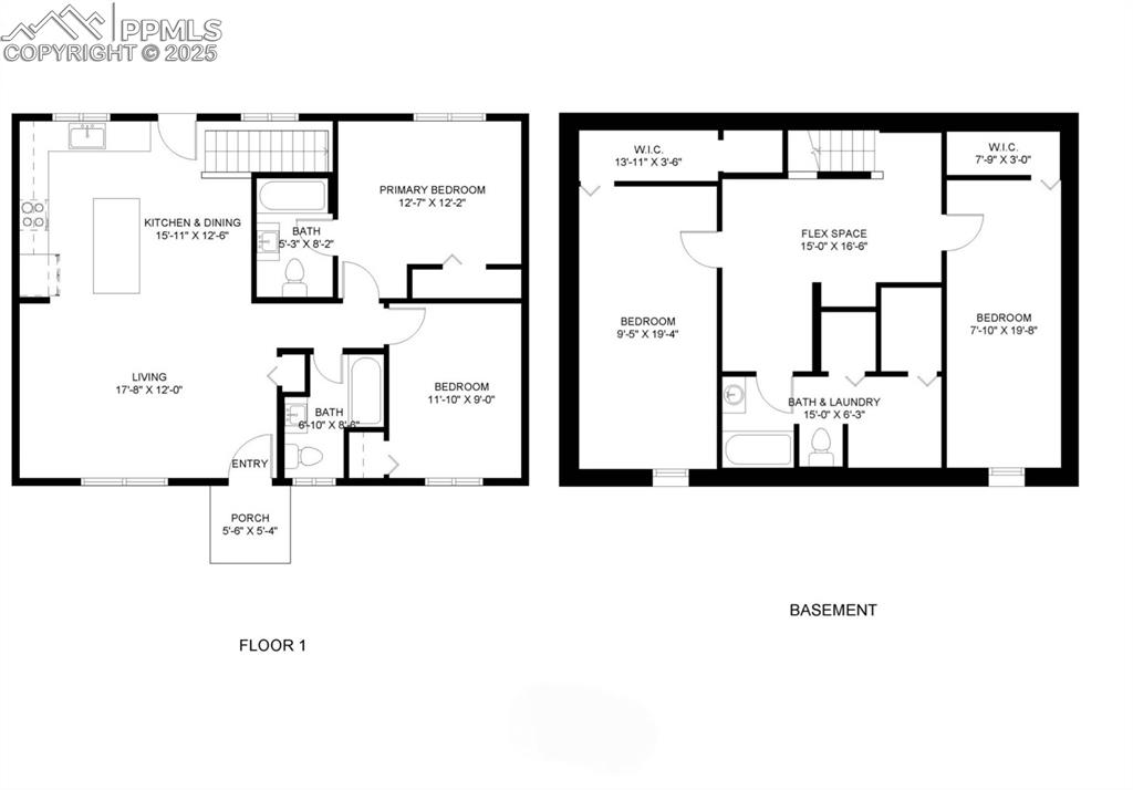
Welcome to this stunning home in Lakewood! This fully remodeled 4-bedroom, 3-bathroom home offers modern style and comfortable living. Step inside to find new floors, updated lighting, and new windows that bring in plenty of natural light. A sleek accent wall in the living room adds a sophisticated, contemporary touch. The kitchen is a true centerpiece, featuring new cabinets and a stylish island perfect for cooking and entertaining. The main floor offers two bedrooms, including a spacious primary suite with an adjoining bathroom, plus an additional full bath for guests. The finished basement expands your living space with two additional bedrooms and a full bathroom — ideal for guests, a home office, or recreation. Outside, enjoy an extended/spacious driveway leading to an oversized 2-car detached garage, offering plenty of parking space — even room for an RV. Conveniently located near shopping, dining, hospitals, Colorado Mills and just a 15-minute drive to the iconic Red Rocks Amphitheatre. This remodeled move-in-ready home combines functional design, modern finishes, and a fantastic Lakewood location! Schedule a showing today!

Property Listed By

Picture of REALTOR Listing Property
  • Ivan Hernandez
  • 1392-469-917  Call the Agent 
Picture of Office Listing Property
  • Luxe Realty, Inc.
  • 0445-766-303  Call the Agent 

Property Details

    General Features

  • Property: Single Family, Ranch
  • Year Built: 1960
  • List Price: $625,000
  • County: Jefferson
  • School District: Jefferson R-1

    Rooms

  • Bedrooms: 4
  • Baths: 3 full bath;
  • Master Bathroom Amenities: Tub/Shower
  • Laundry: Basement

    Structure

  • Foundation: Full Basement
  • Heating: Forced Air
  • Cooling: Central Air
  • Garage/Parking #: 2 vehicle(s), Detached
  • Total SqFt: 1,872
  • Finished SqFt: 1,872
  • Basement SqFt: 936
  • Basement % Fin: 100
  • Construction Status: Existing Home
  • Structure: Frame

    Features

  • Appliances: Dishwasher, Disposal, Microwave Oven, Range, Refrigerator
  • Floors: Carpet
  • Laundry: Basement

    Taxes, Utilities, Lot

  • Tax: $2,455
  • Lot Size: 0.20 Acres, 8,668 SqFt
  • Landscaped: All
  • Fence: Rear
  • Driveway: Concrete, Paved
  • Lot Location: Hiking Trail, Near Hospital, Near Park, Near Public Transit, Near Schools, Near Shopping Center
  • Existing Water: Municipal

    Community

    Additional Information


      Disclaimer
      The real estate listing information and related content displayed on this site is provided exclusively for consumers’ personal, non-commercial use and may not be used for any purpose other than to identify prospective properties consumers may be interested in purchasing.
      PPAR.com Website

      367 S Queen Circle, Lakewood, CO, 80226

      Image 1 of 50: Front of Structure

      Front of Structure

      Image 2 of 50: Front of Structure

      Front of Structure

      Image 3 of 50: Front of Structure

      Front of Structure

      Image 4 of 50: Front of Structure

      Front of Structure

      Image 5 of 50: Living Room

      Living Room

      Image 6 of 50: Living Room

      Living Room

      Image 7 of 50: Living Room

      Living Room

      Image 8 of 50: Kitchen

      Kitchen

      Image 9 of 50: Kitchen

      Kitchen

      Image 10 of 50: Kitchen

      Kitchen

      Image 11 of 50: Kitchen

      Kitchen

      Image 12 of 50: Dining Area

      Dining Area

      Image 13 of 50: Dining Area

      Dining Area

      Image 14 of 50: Living Room

      Living Room

      Image 15 of 50: Bedroom

      Bedroom

      Image 16 of 50: Bedroom

      Bedroom

      Image 17 of 50: Bedroom

      Bedroom

      Image 18 of 50: Bathroom

      Bathroom

      Image 19 of 50: Bathroom

      Bathroom

      Image 20 of 50: Office

      Office

      Image 21 of 50: Office

      Office

      Image 22 of 50: Bathroom

      Bathroom

      Image 23 of 50: Master Bathroom

      Master Bathroom

      Image 24 of 50: Master Bathroom

      Master Bathroom

      Image 25 of 50: Other

      Other

      Image 26 of 50: Other

      Other

      Image 27 of 50: Bathroom

      Bathroom

      Image 28 of 50: Bathroom

      Bathroom

      Image 29 of 50: Other

      Other

      Image 30 of 50: Other

      Other

      Image 31 of 50: Garage

      Garage

      Image 32 of 50: Garage

      Garage

      Image 33 of 50: Garage

      Garage

      Image 34 of 50: Side of Structure

      Side of Structure

      Image 35 of 50: Front of Structure

      Front of Structure

      Image 36 of 50: Front of Structure

      Front of Structure

      Image 37 of 50: Front of Structure

      Front of Structure

      Image 38 of 50: Front of Structure

      Front of Structure

      Image 39 of 50: Front of Structure

      Front of Structure

      Image 40 of 50: Front of Structure

      Front of Structure

      Image 41 of 50: Yard

      Yard

      Image 42 of 50: Garage

      Garage

      Image 43 of 50: Back of Structure

      Back of Structure

      Image 44 of 50: Yard

      Yard

      Image 45 of 50: Floor Plan

      Floor Plan

      Image 46 of 50: Floor Plan

      Floor Plan

      Image 47 of 50: Aerial View

      Aerial View

      Image 48 of 50: Aerial View

      Aerial View

      Image 49 of 50: Aerial View

      Aerial View

      Image 50 of 50: Aerial View

      Aerial View

      Disclaimer: The real estate listing information and related content displayed on this site is provided exclusively for consumers’ personal, non-commercial use and may not be used for any purpose other than to identify prospective properties consumers may be interested in purchasing.