510 Avenida Del Cielo, Fountain, CO, 80817

Ranch-style home with brick siding, driveway, and a garage

Living area with light wood-type flooring and baseboards

Kitchen featuring stainless steel appliances, light brown cabinetry, tile counters, decorative backsplash, and dark wood-style floors

Living area with a brick fireplace, wood finished floors, a textured ceiling, and wood walls

Full bathroom featuring vanity and shower / tub combo

Living area with wood finished floors and baseboards

Living area featuring light wood-style flooring, wooden walls, and stairs

Living area featuring light wood-style floors and stairway

Kitchen with appliances with stainless steel finishes, light wood-type flooring, light brown cabinets, tasteful backsplash, and tile counters

Dining room featuring wood finished floors, a ceiling fan, and electric panel

Dining room featuring ceiling fan and dark wood-style flooring

Living area with wood finished floors, a textured ceiling, and stairs

Office area with a textured ceiling, a textured wall, and carpet

Full bathroom with a textured wall and wood finished floors

Sitting room featuring an accent wall, carpet flooring, and a ceiling fan

Carpeted bedroom featuring ornamental molding and a ceiling fan

Bedroom featuring carpet floors, a ceiling fan, beamed ceiling, and crown molding

Spacious closet featuring carpet floors

Laundry room with water heater and washer and clothes dryer

Living area with vaulted ceiling and concrete flooring

Fenced backyard with a patio area and a grill

Fenced backyard featuring a storage shed and a patio area

View of yard

View of fenced backyard

Aerial view of residential area

Aerial perspective of suburban area

Aerial perspective of suburban area

Aerial view of residential area

Aerial view of residential area

Bird's eye view

Aerial perspective of suburban area with a mountain backdrop

Aerial view of residential area

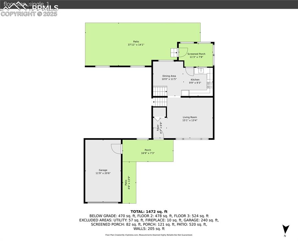
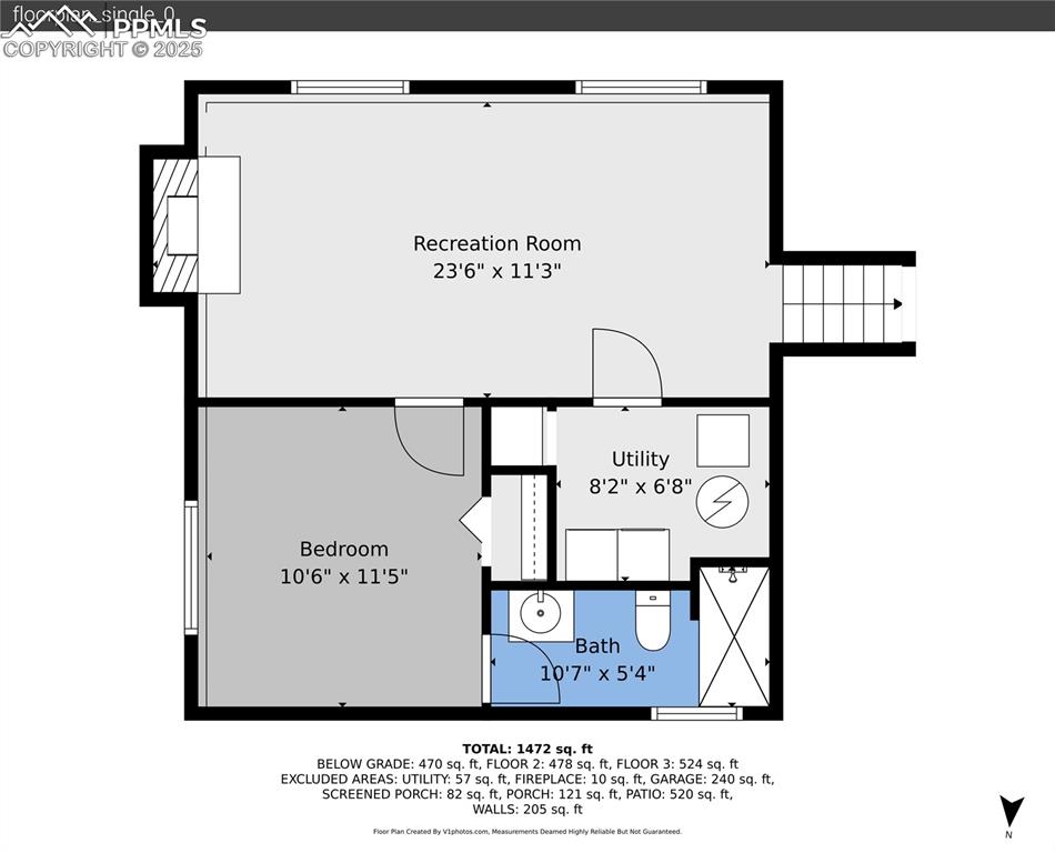
View of home floor plan

View of property floor plan

View of room layout

View of property floor plan
Disclaimer: The real estate listing information and related content displayed on this site is provided exclusively for consumers’ personal, non-commercial use and may not be used for any purpose other than to identify prospective properties consumers may be interested in purchasing.