2531 Delphinium Street, Pueblo, CO, 81005

Image Count: 34

$289,000

  • Highlights
  • Single Family
  • 3 bd | 2 ba | 1,946 sqft
  • 2531 Delphinium Street, Pueblo, CO, 81005 listed by Christine White C2EX MRP RENE SFR
  • Active
  • MLS#: 7628212
  • Tour #1
  • View on Map
Space maker

Property Description

Move in ready, pre-inspected, and with paid-off solar panels! Enjoy light, bright surroundings in a home where the love of art and music, along with pride of ownership, is apparent! The generous kitchen is the heart of the home, well-placed with access to multiple living areas, an eat-in area, and additional dining area. Solar panels ensure manageable utility bills, while two air conditioning units keep the summers comfortable. The thoughtful 1997 and 2008 additions provide a private primary suite, direct access to an oversized garage, plenty of storage, and space for entertaining and hobbies. The home was painted a warm, welcoming color in 2021, and the windows on the south side have been replaced with UV rated windows. Convenient vinyl flooring makes maintenance a breeze! The roof, water heater, and radon mitigation system were installed in 2024, and the HVAC is managed by two Ecobee smart thermostats, which enable you to change the settings at home or away. Fancy some time outside? The covered private patio and nearby parks await! Established blackberry canes produce every summer, and there is more space to garden, with a storage shed for your tools. Less than ten minutes to Elmwood Golf Course and Pueblo Zoo, five minutes to shopping and restaurants, as well as Beulah Heights Elementary and Lamb Branch Library, the home is convenient and in-tune with your needs.

Property Listed By

Picture of REALTOR Listing Property
  • Christine White C2EX MRP RENE SFR
  • 1700-682-917  Call the Agent 
Picture of Office Listing Property
  • ERA Shields Real Estate
  • 0001-395-917  Call the Agent 

Property Details

    General Features

  • Property: Single Family, Ranch
  • Year Built: 1952
  • List Price: $289,000
  • County: Pueblo
  • School District: Pueblo-60

    Rooms

  • Master: Main Level, 13 x 17
  • Bedrooms: 3
  • Baths: 2 full bath;
  • Master Bathroom Amenities: 5-Pc Bath, Tub/Shower

    Structure

  • Foundation: Crawl Space
  • Heating: Forced Air
  • Cooling: Central Air
  • Garage/Parking #: 1 vehicle(s), Attached
  • Patio Description: Concrete, Covered
  • Total SqFt: 1,946
  • Finished SqFt: 1,946
  • Construction Status: Existing Home
  • Siding: Stucco
  • Structure: Framed on Lot

    Features

  • Appliances: 220v in Kitchen, Disposal, Dryer, Microwave Oven, Oven, Range, Refrigerator, Self Cleaning Oven, Washer
  • Floors: Carpet, Wood Laminate
  • Entry: Wood Laminate

    Taxes, Utilities, Lot

  • Tax: $1,392
  • Lot Size: 0.16 Acres, 6,970 SqFt
  • Lot Description: Level
  • Existing Utilities: Cable Connected, Electricity Connected, Natural Gas Connected, Solar, Telephone
  • Existing Water: Municipal

    Community

    Additional Information


      Disclaimer
      The real estate listing information and related content displayed on this site is provided exclusively for consumers’ personal, non-commercial use and may not be used for any purpose other than to identify prospective properties consumers may be interested in purchasing.
      PPAR.com Website

      2531 Delphinium Street, Pueblo, CO, 81005

      Image 1 of 34: Front of Structure

      Front of Structure

      Image 2 of 34: with summer front lawn

      with summer front lawn

      Image 3 of 34: Front of Structure

      Front of Structure

      Image 4 of 34: Front of Structure

      Front of Structure

      Image 5 of 34: large covered patio

      large covered patio

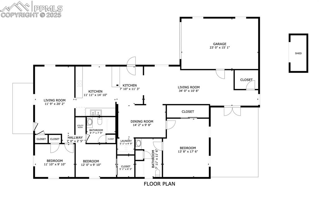
      Image 6 of 34: Floor Plan

      Floor Plan

      Image 7 of 34: Living Room

      Living Room

      Image 8 of 34: Living Room

      Living Room

      Image 9 of 34: Dining Area

      Dining Area

      Image 10 of 34: Dining Area

      Dining Area

      Image 11 of 34: Kitchen

      Kitchen

      Image 12 of 34: Kitchen

      Kitchen

      Image 13 of 34: Kitchen

      Kitchen

      Image 14 of 34: Kitchen

      Kitchen

      Image 15 of 34: Kitchen

      Kitchen

      Image 16 of 34: Other

      Other

      Image 17 of 34: Other

      Other

      Image 18 of 34: French doors to backyard

      French doors to backyard

      Image 19 of 34: large storage closet

      large storage closet

      Image 20 of 34: Master Bedroom

      Master Bedroom

      Image 21 of 34: Master Bedroom

      Master Bedroom

      Image 22 of 34: Master Bedroom

      Master Bedroom

      Image 23 of 34: Master Bathroom

      Master Bathroom

      Image 24 of 34: Master Bathroom

      Master Bathroom

      Image 25 of 34: Bedroom

      Bedroom

      Image 26 of 34: Bedroom

      Bedroom

      Image 27 of 34: Bathroom

      Bathroom

      Image 28 of 34: Bathroom

      Bathroom

      Image 29 of 34: Storage

      Storage

      Image 30 of 34: Bedroom

      Bedroom

      Image 31 of 34: Garage

      Garage

      Image 32 of 34: Aerial View

      Aerial View

      Image 33 of 34: Aerial View

      Aerial View

      Image 34 of 34: Front of Structure

      Front of Structure

      Disclaimer: The real estate listing information and related content displayed on this site is provided exclusively for consumers’ personal, non-commercial use and may not be used for any purpose other than to identify prospective properties consumers may be interested in purchasing.