2631 Emerald Ridge Drive, Colorado Springs, CO, 80920

Front of Structure

Front of Structure

Front of Structure

Front of Structure

Front of Structure

Aerial View

Other

Living Room

Living Room

Living Room

Dining Area

Dining Area

Dining Area

Kitchen

Kitchen

Kitchen

Kitchen

Dining Area

Deck

Deck

Bathroom

Laundry

Living Room

Living Room

Living Room

Bedroom

Bedroom

Bathroom

Office

Office

Bedroom

Bedroom

Bathroom

Bathroom

Game Room

Media Room

Walkout Basement

Yard

Media Room

Bedroom

Bedroom

Aerial View

Aerial View

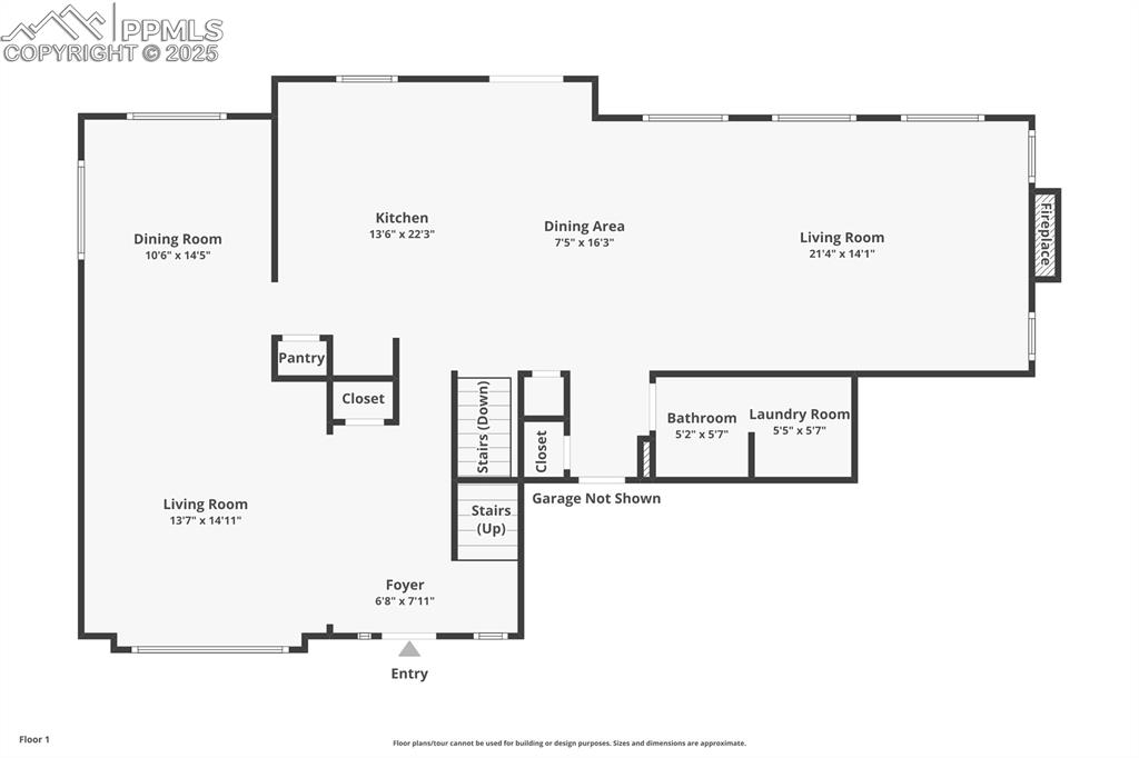
Main Level Floor Plan

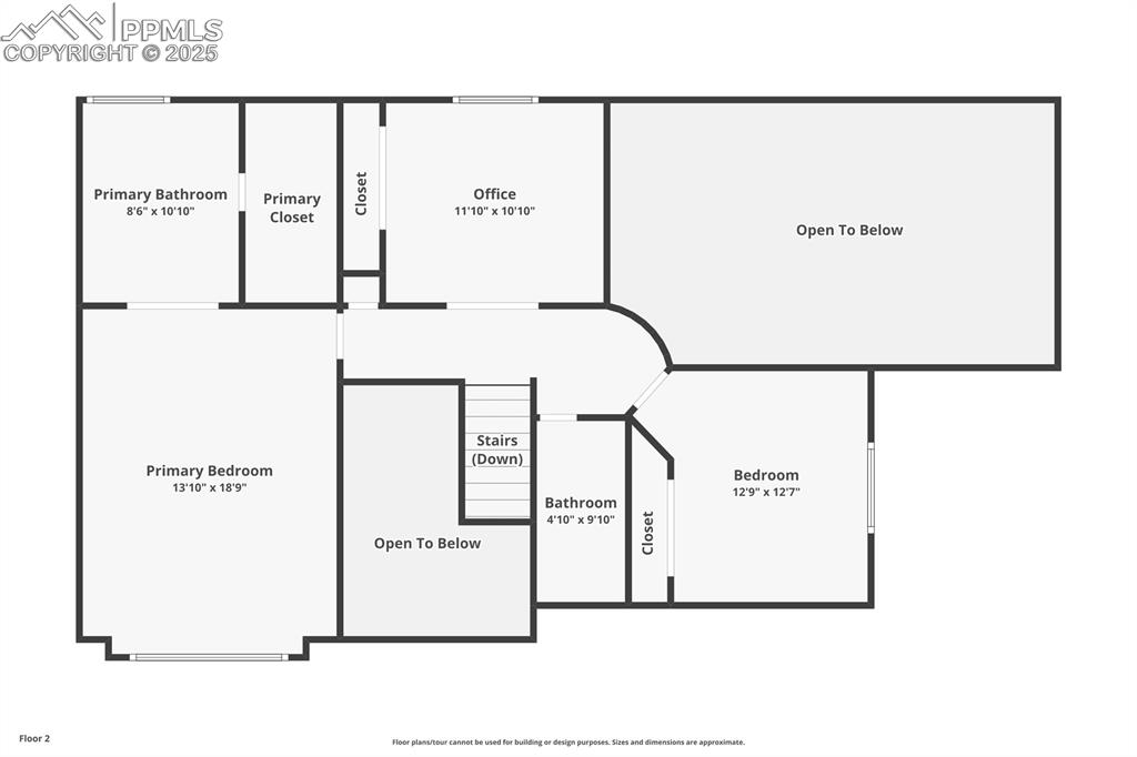
Upper Level Floor Plan

Basement Level Floor Plan

Nearby Mountain View Elementary School and Challenger Middle School ; short walking distance from home

Aerial View

Pine Creek Golf Course

Nearby Shopping Center ; walking distance from home
Disclaimer: The real estate listing information and related content displayed on this site is provided exclusively for consumers’ personal, non-commercial use and may not be used for any purpose other than to identify prospective properties consumers may be interested in purchasing.